Maison neuve à
Éragny-sur-Epte (60590) Référence : KD2322073_1

Prix du projet : Maison avec Terrain

prix 271 477 €

  • 5 pièces
  • 3 chambres
  • Surface maison 120 m2

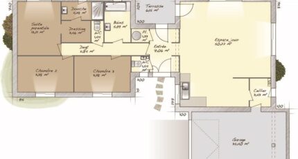
Maison de 5 pièces (120 m²) en vente à Éragny-sur-Epte
PROCHE DE BEAUVAIS - MAISON 5 PIÈCES NEUVE
À vendre : à quelques minutes du Transilien J (gare de Gisors, 1 h de Paris), votre agence Maisons Balency Gravigny est ravie de vous présenter cette maison de 5 pièces de plain-pied de 120 m² et de 463 m² de terrain à Éragny-sur-Epte (60590). Elle se divise en trois chambres, une cuisine et deux salles de bains.
La maison est neuve.
L'École Primaire Jean Mermoz est implantée à moins de 10 minutes à pied. Niveau transports en commun, il y a quatre gares à moins de 10 minutes en voiture. Il y a un accès à la nationale N31 à 19 km et Beauvais est située à 26 km. On trouve un tennis et une bibliothèque dans les environs.
Son prix de vente est de 271 477 €.
Contactez notre agence (DELELIS Karen : 07-49-97-72-93) pour plus d'informations sur la propriété ou sur les modalités de vente.

Annonce proposée par un Agent Commercial Partenaire.

Mentions légales

Terrain proposé par un partenaire foncier selon disponibilités et autorisation de publicité au prix de 67 900 €. Hors droit d'enregistrement et frais de notaire. Terrain + Maison proposés au prix de 271 477 € (Hors branchements et raccordements, papiers peints, peintures, revêtement de sol dans les chambres. Tarif modifiable sans préavis). Etiquette énergie : A. Différents modèles disponibles pour ce terrain. Assurances et garanties du constructeur (RC professionnelle, décennale, dommage ouvrage, garantie de remboursement de l'acompte, livraison à prix et délai convenu) : https://www.maisons-balency.fr/informations-legales/. HEXAOM Services est enregistré auprès de l'ORIAS en tant que Courtier en financement, Niveau 1, sous le numéro 14001345.

Contactez l'agence de Gravigny

02 32 51 49 29

    * Champs obligatoires

    Vos informations sont traitées par HEXAOM et transmises à un conseiller commercial qui vous contactera afin de répondre à votre demande. Les plans et images présentés sur notre site sont la propriété d’HEXAOM et ne peuvent pas être reproduits sans son accord. Pour retrouver notre politique de protection des données personnelles et exercer vos droits conformément à la « loi informatique et liberté » cliquez-ici.