Maison neuve à
Éragny-sur-Epte
(60590) Référence :
CT2352881_1
Prix du projet : Maison avec Terrain
prix 249 000 €
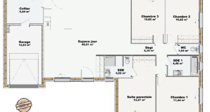
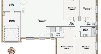
- 5 pièces
- 4 chambres
- Surface maison 113 m2
VENTE d'une maison T5 (113 m²) à Éragny-sur-Epte
MAISON 5 PIÈCES NEUVE - PROCHE DE BEAUVAIS
À deux pas du Transilien J (gare de Gisors, 1 h de Paris), en vente à Éragny-sur-Epte (60590), notre agence Maisons Balency Baillet-en-France est ravie de vous proposer cette maison de 5 pièces de plain-pied de 113 m² et de 480 m² de terrain. Elle se divise en quatre chambres, une cuisine et deux salles de bains.
La maison est neuve.
Il y a l'École Primaire Jean Mermoz à moins de 10 minutes à pied. Niveau transports en commun, on trouve quatre gares à moins de 10 minutes en voiture. On trouve un accès à la nationale N31 à 19 km et Beauvais se situe à 26 km. On trouve un tennis et une bibliothèque à proximité de la maison.
Son prix de vente est de 249 000 €.
Contactez notre agence (TALAMONI Christophe : 06-49-55-08-27) pour obtenir de plus amples informations sur cette maison, sur les modalités de vente ou sur les démarches à suivre. Maisons Balency Baillet-en-France est là pour vous accompagner à toutes les étapes de votre projet.
Annonce proposée par un Agent Commercial Partenaire.
Mentions légales
Terrain proposé par un partenaire foncier selon disponibilités et autorisation de publicité au prix de 68 900 €. Hors droit d'enregistrement et frais de notaire. Terrain + Maison proposés au prix de 180 100 € (Hors branchements et raccordements, papiers peints, peintures, revêtement de sol dans les chambres. Tarif modifiable sans préavis). Etiquette énergie : A. Différents modèles disponibles pour ce terrain. Assurances et garanties du constructeur (RC professionnelle, décennale, dommage ouvrage, garantie de remboursement de l'acompte, livraison à prix et délai convenu) : https://www.maisons-balency.fr/informations-legales/. HEXAOM Services est enregistré auprès de l'ORIAS en tant que Courtier en financement, Niveau 1, sous le numéro 14001345.Agence Maisons Balency de Baillet-en-France (95560)
- Téléphone :
- 01 34 46 05 23
- Adressse :
- 81 rue de Paris
95560 Baillet-en-France, France
