Maison neuve à
Éragny-sur-Epte
(60590) Référence :
CT2352883_1
Prix du projet : Maison avec Terrain
prix 227 000 €
- 4 pièces
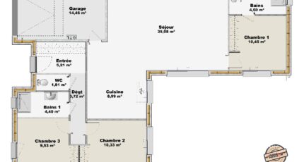
- 3 chambres
- Surface maison 94 m2
VENTE d'une maison de 4 pièces (94 m²) à Éragny-sur-Epte
EMPLACEMENT PRIVILÉGIÉ - MAISON 4 PIÈCES NEUVE
Au pied de la gare de Gisors (Paris à 1 h par le Transilien J), Maisons Balency Baillet-en-France vous présente cette maison de 4 pièces de 94 m² et de 463 m² de terrain avec vue sur espace vert bénéficiant d'un emplacement d'exception dans Éragny-sur-Epte (60590). Son intérieur dispose de trois chambres, d'une cuisine et de deux salles de bains.
Cette maison est de plain-pied. Elle est neuve.
Le bien se trouve dans un secteur recherché. Il y a l'École Primaire Jean Mermoz à moins de 10 minutes à pied. Côté transports en commun, on trouve quatre gares à moins de 10 minutes en voiture. Il y a un accès à la nationale N31 à 19 km et Beauvais se situe à 26 km. Il y a un tennis et une bibliothèque à proximité.
Il est proposé à l'achat pour 227 000 €.
Contactez Christophe TALAMONI (06-49-55-08-27) pour plus d'informations sur la maison, sur les démarches à suivre ou sur les modalités de vente. Donnez vie à vos projets immobiliers avec Maisons Balency Baillet-en-France.
Annonce proposée par un Agent Commercial Partenaire.
Mentions légales
Terrain proposé par un partenaire foncier selon disponibilités et autorisation de publicité au prix de 70 900 €. Hors droit d'enregistrement et frais de notaire. Terrain + Maison proposés au prix de 156 100 € (Hors branchements et raccordements, papiers peints, peintures, revêtement de sol dans les chambres. Tarif modifiable sans préavis). Etiquette énergie : A. Différents modèles disponibles pour ce terrain. Assurances et garanties du constructeur (RC professionnelle, décennale, dommage ouvrage, garantie de remboursement de l'acompte, livraison à prix et délai convenu) : https://www.maisons-balency.fr/informations-legales/. HEXAOM Services est enregistré auprès de l'ORIAS en tant que Courtier en financement, Niveau 1, sous le numéro 14001345.Agence Maisons Balency de Baillet-en-France (95560)
- Téléphone :
- 01 34 46 05 23
- Adressse :
- 81 rue de Paris
95560 Baillet-en-France, France
