Maison neuve à
Eslettes (76710) Référence : KB2440424_3

Prix du projet : Maison avec Terrain

prix 185 000 €

  • 4 pièces
  • 2 chambres
  • Surface maison 70 m2

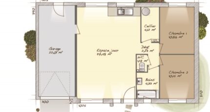
Maison T4 (70 m²) à vendre à Eslettes
IDÉALEMENT SITUÉE - MAISON 4 PIÈCES NEUVE
À 43 km de la Manche et à 12 km de Rouen, en vente idéalement située dans Eslettes (76710), nous vous proposons cette maison de 4 pièces de plain-pied de 70 m².
Conçue de plain-pied, elle inclut deux chambres, une cuisine et une salle de bains. La maison est neuve.
Le terrain du bien s'étend sur 450 m².
Cette maison se situe dans un secteur prisé. On trouve l'École Maternelle Claudine Guérin et l'École Élémentaire Denis Diderot à moins de 10 minutes à pied. Côté transports en commun, il y a six gares à moins de 10 minutes en voiture. On trouve un tennis, une bibliothèque, un commerce et une épicerie à quelques minutes de la maison.
Elle est proposée à l'achat pour 185 000 €.
Contactez notre agence (Kamel BAZIZ : 07-80-36-63-82) pour tout renseignement sur la propriété ou sur les démarches à suivre. Maisons Balency Boos est là pour vous accompagner dans tous vos projets immobiliers.

Annonce proposée par un Agent Commercial Partenaire.

Mentions légales

Terrain proposé par un partenaire foncier selon disponibilités et autorisation de publicité au prix de 60 000 €. Hors droit d'enregistrement et frais de notaire. Terrain + Maison proposés au prix de 185 000 € (Hors branchements et raccordements, papiers peints, peintures, revêtement de sol dans les chambres. Tarif modifiable sans préavis). Etiquette énergie : A. Différents modèles disponibles pour ce terrain. Assurances et garanties du constructeur (RC professionnelle, décennale, dommage ouvrage, garantie de remboursement de l'acompte, livraison à prix et délai convenu) : https://www.maisons-balency.fr/informations-legales/. HEXAOM Services est enregistré auprès de l'ORIAS en tant que Courtier en financement, Niveau 1, sous le numéro 14001345.

Contactez l'agence de Boos

02 35 80 66 66

    * Champs obligatoires

    Vos informations sont traitées par HEXAOM et transmises à un conseiller commercial qui vous contactera afin de répondre à votre demande. Les plans et images présentés sur notre site sont la propriété d’HEXAOM et ne peuvent pas être reproduits sans son accord. Pour retrouver notre politique de protection des données personnelles et exercer vos droits conformément à la « loi informatique et liberté » cliquez-ici.