Maison neuve à
Estézargues (30390) Référence : PP2319616_1

Prix du projet : Maison avec Terrain

prix 288 200 €

  • 5 pièces
  • 4 chambres
  • Surface maison 98 m2

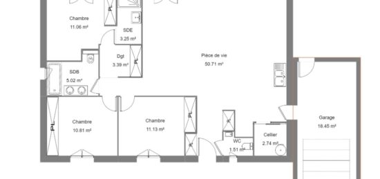
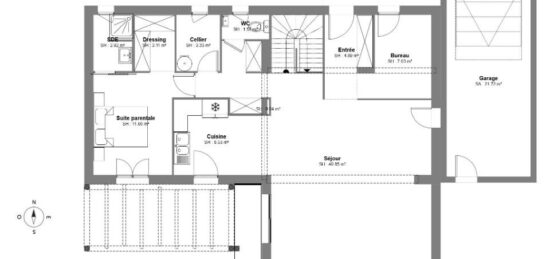
Maison de 5 pièces (98 m²) à vendre à Estézargues
IDÉALEMENT SITUÉE - MAISON 5 PIÈCES NEUVE
À vendre : à 42 km de la mer Méditerranée et à quelques kilomètres de Nîmes, ayez le coup de coeur pour, idéalement située dans Estézargues (30390), cette maison de 5 pièces de 98 m².
Cette maison possède 2 niveaux. Son intérieur offre quatre chambres, une cuisine et une salle de bains. Cette maison est neuve.
Le terrain de la propriété s'étend sur 465 m².
La propriété se situe dans un secteur prisé. On y trouve une école primaire ainsi qu'une crèche. L'autoroute A9 et la nationale N100 sont accessibles à moins de 4 km.
Elle est proposée à l'achat pour 288 200 €.
Prenez contact avec Pascale PIEL (O6-O1-26-64-83) pour tout renseignement sur la maison.

Mentions légales

Terrain proposé par un partenaire foncier selon disponibilités et autorisation de publicité au prix de 109 900 €. Hors droit d'enregistrement et frais de notaire. Maison proposée, avec un contrat de construction de maison individuelle, dans le cadre de la loi du 19/12/1990, au prix de 178 300 € (Hors branchements et raccordements, papiers peints, peintures, revêtement de sol dans les chambres, qui sont chiffrés dans les travaux qui restent à charge du client. Tarif modifiable sans préavis). Étiquette énergie : A. Différents modèles disponibles pour ce terrain. Assurances et garanties du constructeur comprises (RC professionnelle, décennale, dommage ouvrage).

Contactez l'agence de Uzès

04 66 57 25 45

    * Champs obligatoires

    Vos informations sont traitées par HEXAOM et transmises à un conseiller commercial qui vous contactera afin de répondre à votre demande. Les plans et images présentés sur notre site sont la propriété d’HEXAOM et ne peuvent pas être reproduits sans son accord. Pour retrouver notre politique de protection des données personnelles et exercer vos droits conformément à la « loi informatique et liberté » cliquez-ici.