Maison neuve à
Étaimpuis (76850) Référence : RC2346121_2

Prix du projet : Maison avec Terrain

prix 325 855 €

  • 5 pièces
  • 3 chambres
  • Surface maison 120 m2

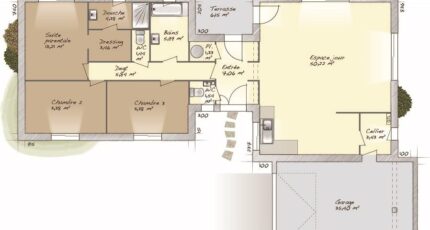
A construire : maison F5 (120 m²) à Étaimpuis
IDÉALEMENT SITUÉE - MAISON 5 PIÈCES NEUVE
En vente à 32 km de la Manche et à quelques kilomètres de Rouen, idéalement située dans Étaimpuis (76850), découvrez cette maison de 5 pièces de plain-pied de 120 m². Conçue de plain-pied, elle dispose de trois chambres, d'une cuisine et de deux salles de bains.
Le terrain de la propriété est de 1 100 m².
Cette maison est neuve.
Cette maison est située dans un secteur convoité. Trois établissements scolaires sont implantés à moins de 10 minutes en voiture, dont le Collège Jean Delacour et le Collège René Coty, tout comme une structure d'accueil pour les tout-petits à moins de 10 minutes à pied. Côté transports, il y a trois gares (Saint-Victor-l'Abbaye, Clères et Auffay) à moins de 10 minutes en voiture. Les autoroutes A151, A29 et A28 et la nationale N27 sont accessibles à moins de 9 km. On trouve des bibliothèques, des tennis, des commerces, des supermarchés, des boulangeries, quatre bureaux de poste et une supérette dans les environs. Enfin, 2 marchés animent le quartier.
Elle est proposée à l'achat pour 325 855 €.
Prenez contact avec Célia RENIER (tél : 07-62-90-87-77) pour toute question sur la maison. Donnez vie à vos projets immobiliers avec Maisons Balency Boos.

Annonce proposée par un Agent Commercial Partenaire.

Mentions légales

Terrain proposé par un partenaire foncier selon disponibilités et autorisation de publicité au prix de 54 000 €. Hors droit d'enregistrement et frais de notaire. Terrain + Maison proposés au prix de 271 855 € (Hors branchements et raccordements, papiers peints, peintures, revêtement de sol dans les chambres. Tarif modifiable sans préavis). Etiquette énergie : A. Différents modèles disponibles pour ce terrain. Assurances et garanties du constructeur (RC professionnelle, décennale, dommage ouvrage, garantie de remboursement de l'acompte, livraison à prix et délai convenu) : https://www.maisons-balency.fr/informations-legales/. HEXAOM Services est enregistré auprès de l'ORIAS en tant que Courtier en financement, Niveau 1, sous le numéro 14001345.

Contactez l'agence de Boos

02 35 80 66 66

    * Champs obligatoires

    Vos informations sont traitées par HEXAOM et transmises à un conseiller commercial qui vous contactera afin de répondre à votre demande. Les plans et images présentés sur notre site sont la propriété d’HEXAOM et ne peuvent pas être reproduits sans son accord. Pour retrouver notre politique de protection des données personnelles et exercer vos droits conformément à la « loi informatique et liberté » cliquez-ici.