Maison neuve à
Étaimpuis (76850) Référence : RC2346121_3

Prix du projet : Maison avec Terrain

prix 244 631 €

  • 9 pièces
  • 5 chambres
  • Surface maison 124 m2

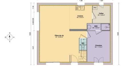
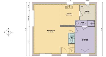
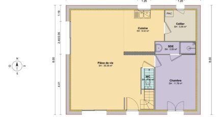
A construire : maison T9 (124 m²) à Étaimpuis
IDÉALEMENT SITUÉE - MAISON 9 PIÈCES NEUVE
À vendre : à 32 km de la Manche et à deux pas de Rouen, nous vous présentons, idéalement située dans Étaimpuis (76850), cette maison de 9 pièces de 124 m². Son intérieur se divise en cinq chambres, une cuisine et trois salles de bains.
Le terrain de la propriété s'étend sur 1 100 m².
Cette maison compte 2 niveaux. Elle est neuve.
La maison se trouve dans un quartier attractif. Il y a trois établissements scolaires à moins de 10 minutes en voiture, dont le Collège Jean Delacour et le Collège René Coty et une crèche à moins de 10 minutes à pied. Côté transports, on trouve les gares Saint-Victor-l'Abbaye, Clères et Auffay à moins de 10 minutes en voiture. Les autoroutes A151, A29 et A28 et la nationale N27 sont accessibles à moins de 9 km. Il y a des bibliothèques, des tennis, des commerces, des supermarchés, des boulangeries, des épiceries et quatre bureaux de poste à proximité du bien. Enfin, 2 marchés animent le quartier.
Son prix de vente est de 244 631 €.
Contactez notre agence (RENIER Célia : 07-62-90-87-77) pour tout renseignement sur la maison.

Annonce proposée par un Agent Commercial Partenaire.

Mentions légales

Terrain proposé par un partenaire foncier selon disponibilités et autorisation de publicité au prix de 54 000 €. Hors droit d'enregistrement et frais de notaire. Maison proposée, avec un contrat de construction de maison individuelle, dans le cadre de la loi du 19/12/1990, au prix de 190 631 € (Hors branchements et raccordements, papiers peints, peintures, revêtement de sol dans les chambres, qui sont chiffrés dans les travaux qui restent à charge du client. Tarif modifiable sans préavis). Étiquette énergie : A. Différents modèles disponibles pour ce terrain. Assurances et garanties du constructeur comprises (RC professionnelle, décennale, dommage ouvrage).

Contactez l'agence de Boos

02 35 80 66 66

    * Champs obligatoires

    Vos informations sont traitées par HEXAOM et transmises à un conseiller commercial qui vous contactera afin de répondre à votre demande. Les plans et images présentés sur notre site sont la propriété d’HEXAOM et ne peuvent pas être reproduits sans son accord. Pour retrouver notre politique de protection des données personnelles et exercer vos droits conformément à la « loi informatique et liberté » cliquez-ici.