Maison neuve à
Évreux (27000) Référence : MJ2323204_2

Prix du projet : Maison avec Terrain

prix 219 000 €

  • 4 pièces
  • 3 chambres
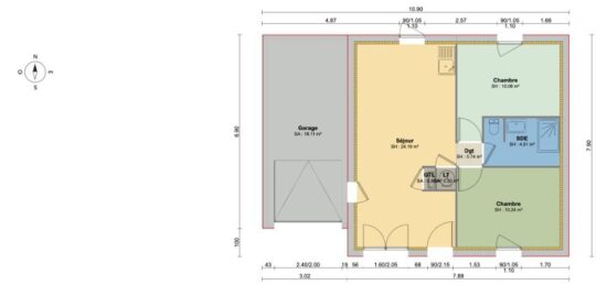
  • Surface maison 83 m2

VENTE d'une maison T4 (83 m²) à Parville
QUARTIER RECHERCHÉ - MAISON 4 PIÈCES NEUVE
En vente : à deux pas d'Évreux, découvrez, située dans un quartier recherché de Parville (27180), cette maison de 4 pièces de plain-pied de 83 m² et de 436 m² de terrain.
Son intérieur est composé de trois chambres, d'une cuisine et d'une salle de bains. Cette maison est neuve.
Cette maison est située dans un secteur prisé. Niveau transports en commun, il y a deux gares (Évreux Normandie et La Bonneville-sur-Iton) à moins de 10 minutes en voiture. La nationale N13 est accessible à 1 km. On trouve un commerce dans les environs.
Elle est à vendre pour la somme de 219 000 €.
Contactez notre agence (Michael JOURDON : 06.43.05.84.44) pour toute information sur la propriété, sur les démarches à suivre ou sur les modalités de vente. Maisons Balency Boos est là pour vous accompagner dans tous vos projets immobiliers.

Annonce proposée par un Agent Commercial Partenaire.

Mentions légales

Terrain proposé par un partenaire foncier selon disponibilités et autorisation de publicité au prix de 59 000 €. Hors droit d'enregistrement et frais de notaire. Maison proposée, avec un contrat de construction de maison individuelle, dans le cadre de la loi du 19/12/1990, au prix de 160 000 € (Hors branchements et raccordements, papiers peints, peintures, revêtement de sol dans les chambres, qui sont chiffrés dans les travaux qui restent à charge du client. Tarif modifiable sans préavis). Étiquette énergie : A. Différents modèles disponibles pour ce terrain. Assurances et garanties du constructeur comprises (RC professionnelle, décennale, dommage ouvrage).

Contactez l'agence de Boos

02 35 80 66 66

    * Champs obligatoires

    Vos informations sont traitées par HEXAOM et transmises à un conseiller commercial qui vous contactera afin de répondre à votre demande. Les plans et images présentés sur notre site sont la propriété d’HEXAOM et ne peuvent pas être reproduits sans son accord. Pour retrouver notre politique de protection des données personnelles et exercer vos droits conformément à la « loi informatique et liberté » cliquez-ici.