Maison neuve à
Évry-Grégy-sur-Yerre
(77166) Référence :
AM2321236_2
Prix du projet : Maison avec Terrain
prix 384 000 €
- 6 pièces
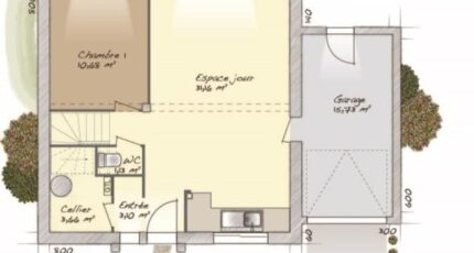
- 4 chambres
- Surface maison 98 m2
VENTE : maison F6 (98 m²) à Évry-Grégy-sur-Yerre
PROCHE DE MONTREUIL - MAISON 6 PIÈCES NEUVE
Proche du RER D (station Lieusaint-Moissy, 20 min de Paris), Maisons Balency Saint-Maur-des-Fossés vous propose en vente à Évry-Grégy-sur-Yerre (77166), cette maison de 6 pièces de 98 m². Son intérieur offre quatre chambres, une cuisine et une salle de bains.
Le terrain du bien s'étend sur 500 m².
Il s'agit d'une maison de 2 niveaux. Elle est neuve.
L'École Primaire la Clé des Champs est implantée à moins de 10 minutes à pied. Niveau transports en commun, on trouve la ligne de RER D (Lieusaint-Moissy) ainsi que quatre gares à moins de 10 minutes en voiture. Il y a une bibliothèque, un tennis, deux commerces et une boulangerie à quelques minutes à peine.
Son prix de vente est de 384 000 €.
N'hésitez pas à prendre contact avec notre agence (Aurelien MONTANIER : 06-24-66-88-34) pour toute information sur cette maison. Maisons Balency Saint-Maur-des-Fossés est là pour vous accompagner dans tous vos projets immobiliers.
Annonce proposée par un Agent Commercial Partenaire.
Mentions légales
Terrain proposé par un partenaire foncier selon disponibilités et autorisation de publicité au prix de 160 000 €. Hors droit d'enregistrement et frais de notaire. Maison proposée, avec un contrat de construction de maison individuelle, dans le cadre de la loi du 19/12/1990, au prix de 224 000 € (Hors branchements et raccordements, papiers peints, peintures, revêtement de sol dans les chambres, qui sont chiffrés dans les travaux qui restent à charge du client. Tarif modifiable sans préavis). Étiquette énergie : A. Différents modèles disponibles pour ce terrain. Assurances et garanties du constructeur comprises (RC professionnelle, décennale, dommage ouvrage).Agence Maisons Balency de Saint-Maur-des-Fossés (94100)
- Téléphone :
- 01 87 36 85 37
- Adressse :
- 12 avenue de la république
94100 Saint-Maur-des-Fossés, France
