Maison neuve à
Fécamp (76400) Référence : MJ2253258_1

Prix du projet : Maison avec Terrain

prix 189 000 €

  • 3 pièces
  • 2 chambres
  • Surface maison 71 m2

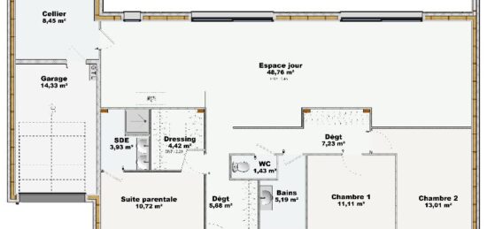
Maison T3 (71 m²) à vendre à Fécamp
IDÉALEMENT SITUÉE - MAISON 3 PIÈCES NEUVE
À vendre : localisée à 6 km de la Manche, votre agence Maisons Balency Boos est heureuse de vous présenter, idéalement située dans Fécamp (76400), cette maison de 3 pièces de plain-pied de 71 m². Conçue de plain-pied, elle comporte deux chambres, une cuisine et une salle de bains.
Le terrain du bien est de 805 m².
La maison est neuve.
La maison se situe dans un secteur convoité. On trouve des établissements scolaires du primaire et du secondaire à moins de 10 minutes à pied. Niveau transports, il y a la gare Fécamp juste à côté. L'autoroute A29 est accessible à 20 km. On trouve un bassin de natation, un tennis, un port de plaisance, des commerces, des boulangeries, deux supermarchés, une poissonnerie et trois épiceries à proximité.
Son prix de vente est de 189 000 €.
Contactez Michael JOURDON (0643058444) pour obtenir de plus amples renseignements sur la maison ou sur les démarches à suivre. Concrétisez vos projets immobiliers avec Michael.

Annonce proposée par un Agent Commercial Partenaire.

Mentions légales

Terrain proposé par un partenaire foncier selon disponibilités et autorisation de publicité au prix de 59 000 €. Hors droit d'enregistrement et frais de notaire. Maison proposée, avec un contrat de construction de maison individuelle, dans le cadre de la loi du 19/12/1990, au prix de 130 000 € (Hors branchements et raccordements, papiers peints, peintures, revêtement de sol dans les chambres, qui sont chiffrés dans les travaux qui restent à charge du client. Tarif modifiable sans préavis). Étiquette énergie : A. Différents modèles disponibles pour ce terrain. Assurances et garanties du constructeur comprises (RC professionnelle, décennale, dommage ouvrage).

Contactez l'agence de Boos

02 35 80 66 66

    * Champs obligatoires

    Vos informations sont traitées par HEXAOM et transmises à un conseiller commercial qui vous contactera afin de répondre à votre demande. Les plans et images présentés sur notre site sont la propriété d’HEXAOM et ne peuvent pas être reproduits sans son accord. Pour retrouver notre politique de protection des données personnelles et exercer vos droits conformément à la « loi informatique et liberté » cliquez-ici.