Maison neuve à
Fécamp (76400) Référence : MJ2253611_4

Prix du projet : Maison avec Terrain

prix 279 500 €

  • 4 pièces
  • 3 chambres
  • Surface maison 120 m2

VENTE : maison F4 (120 m²) à Ganzeville
QUARTIER RECHERCHÉ - MAISON 4 PIÈCES NEUVE
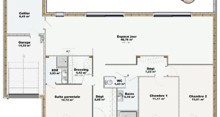
En vente : à 6 km de la Manche, Maisons Balency Boos vous présente, située dans un quartier prisé de Ganzeville (76400), cette maison de 4 pièces de plain-pied de 120 m² et de 700 m² de terrain.
Son intérieur est composé de trois chambres, d'une cuisine et de deux salles de bains. Cette maison est neuve.
Cette maison se situe dans un secteur convoité. Côté transports en commun, on trouve la gare Fécamp à moins de 10 minutes en voiture. L'autoroute A29 est accessible à 17 km. Il y a un tennis dans les environs.
Elle est proposée à l'achat pour 279 500 €.
Prenez contact avec AMANE (0698975793) pour obtenir de plus amples informations sur la propriété, sur les démarches à suivre ou sur les modalités de vente. Concrétisez vos projets immobiliers avec AMANE.

Annonce proposée par un Agent Commercial Partenaire.

Mentions légales

Terrain proposé par un partenaire foncier selon disponibilités et autorisation de publicité au prix de 67 500 €. Hors droit d'enregistrement et frais de notaire. Maison proposée, avec un contrat de construction de maison individuelle, dans le cadre de la loi du 19/12/1990, au prix de 212 000 € (Hors branchements et raccordements, papiers peints, peintures, revêtement de sol dans les chambres, qui sont chiffrés dans les travaux qui restent à charge du client. Tarif modifiable sans préavis). Étiquette énergie : A. Différents modèles disponibles pour ce terrain. Assurances et garanties du constructeur comprises (RC professionnelle, décennale, dommage ouvrage).

Contactez l'agence de Boos

02 35 80 66 66

    * Champs obligatoires

    Vos informations sont traitées par HEXAOM et transmises à un conseiller commercial qui vous contactera afin de répondre à votre demande. Les plans et images présentés sur notre site sont la propriété d’HEXAOM et ne peuvent pas être reproduits sans son accord. Pour retrouver notre politique de protection des données personnelles et exercer vos droits conformément à la « loi informatique et liberté » cliquez-ici.