Maison neuve à
Fécamp (76400) Référence : MJ2253611_6

Prix du projet : Maison avec Terrain

prix 329 500 €

  • 5 pièces
  • 3 chambres
  • Surface maison 120 m2

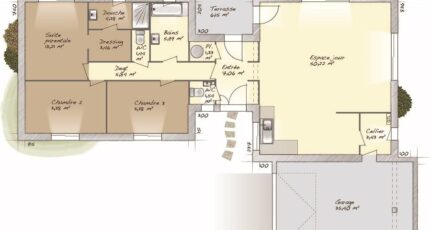
VENTE : maison de 5 pièces (120 m²) à Ganzeville
QUARTIER RECHERCHÉ - MAISON 5 PIÈCES NEUVE
En vente à 6 km de la Manche, notre agence Maisons Balency Boos est ravie de vous proposer, située dans un quartier attractif de Ganzeville (76400), cette maison de 5 pièces de plain-pied de 120 m² et de 700 m² de terrain.
Elle inclut trois chambres, une cuisine et deux salles de bains. La maison est neuve.
Cette maison est située dans un secteur prisé. Niveau transports, il y a la gare Fécamp à moins de 10 minutes en voiture. Il y a un accès à l'autoroute A29 à 17 km. On trouve un tennis dans les environs.
Son prix de vente est de 329 500 €.
N'hésitez pas à prendre contact avec AMANE (tél : 0698975793) pour obtenir de plus amples renseignements sur le bien, sur les modalités de vente ou sur les démarches à suivre. Faites de vos projets immobiliers une réalité avec AMANE.

Annonce proposée par un Agent Commercial Partenaire.

Mentions légales

Terrain proposé par un partenaire foncier selon disponibilités et autorisation de publicité au prix de 67 500 €. Hors droit d'enregistrement et frais de notaire. Maison proposée, avec un contrat de construction de maison individuelle, dans le cadre de la loi du 19/12/1990, au prix de 262 000 € (Hors branchements et raccordements, papiers peints, peintures, revêtement de sol dans les chambres, qui sont chiffrés dans les travaux qui restent à charge du client. Tarif modifiable sans préavis). Étiquette énergie : A. Différents modèles disponibles pour ce terrain. Assurances et garanties du constructeur comprises (RC professionnelle, décennale, dommage ouvrage).

Contactez l'agence de Boos

02 35 80 66 66

    * Champs obligatoires

    Vos informations sont traitées par HEXAOM et transmises à un conseiller commercial qui vous contactera afin de répondre à votre demande. Les plans et images présentés sur notre site sont la propriété d’HEXAOM et ne peuvent pas être reproduits sans son accord. Pour retrouver notre politique de protection des données personnelles et exercer vos droits conformément à la « loi informatique et liberté » cliquez-ici.