Maison neuve à
Fleurines
(60700) Référence :
MU2445877_3
Prix du projet : Maison avec Terrain
prix 305 000 €
- 6 pièces
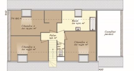
- 4 chambres
- Surface maison 117 m2
VENTE : maison de 6 pièces (117 m²) à Fleurines
EMPLACEMENT PRIVILÉGIÉ - MAISON 6 PIÈCES NEUVE
En vente : à côté de la station Creil (Paris à 50 min par le RER D), nous sommes heureux de vous proposer, bénéficiant d'un emplacement d'exception dans Fleurines (60700), cette maison de 6 pièces de plain-pied de 117 m² et de 733 m² de terrain. Elle inclut quatre chambres, une cuisine et deux salles de bains.
La maison est neuve.
La maison se situe dans un quartier prisé. On y trouve l'École Maternelle Roquesable et l'École Élémentaire Roquesable. Niveau transports, on trouve la station de RER Creil (ligne D) ainsi que quatre gares à moins de 10 minutes en voiture. Il y a un tennis, un bassin de natation, un commerce, un bureau de poste et une épicerie à proximité du logement.
Elle est proposée à l'achat pour 305 000 €.
Contactez Mylann URBANSKY (tél : 06-23-32-28-23) pour toute question sur la maison ou sur les modalités de vente. Donnez vie à vos projets immobiliers avec Maisons Balency Baillet-en-France.
Annonce proposée par un Agent Commercial Partenaire.
Mentions légales
Terrain proposé par un partenaire foncier selon disponibilités et autorisation de publicité au prix de 118 000 €. Hors droit d'enregistrement et frais de notaire. Terrain + Maison proposés au prix de 305 000 € (Hors branchements et raccordements, papiers peints, peintures, revêtement de sol dans les chambres. Tarif modifiable sans préavis). Etiquette énergie : A. Différents modèles disponibles pour ce terrain. Assurances et garanties du constructeur (RC professionnelle, décennale, dommage ouvrage, garantie de remboursement de l'acompte, livraison à prix et délai convenu) : https://www.maisons-balency.fr/informations-legales/. HEXAOM Services est enregistré auprès de l'ORIAS en tant que Courtier en financement, Niveau 1, sous le numéro 14001345.Agence Maisons Balency de Baillet-en-France (95560)
- Téléphone :
- 01 34 46 05 23
- Adressse :
- 81 rue de Paris
95560 Baillet-en-France, France
