Maison neuve à
Fleury-sur-Andelle
(27380) Référence :
MJ2363066_4
Prix du projet : Maison avec Terrain
prix 239 000 €
- 5 pièces
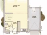
- 3 chambres
- Surface maison 90 m2
Maison T5 (90 m²) en vente à Radepont
QUARTIER RECHERCHÉ - MAISON 5 PIÈCES NEUVE
En vente : localisée à quelques kilomètres de Rouen, venez découvrir cette maison de 5 pièces de 90 m² et de 708 m² de terrain dans un quartier attractif de Radepont (27380). Elle est composée de trois chambres, d'une cuisine et d'une salle de bains.
Cette maison possède 2 niveaux. Elle est neuve.
La maison se situe dans un secteur recherché. L'École Primaire Georges Labbé est implantée à moins de 10 minutes à pied. Les autoroutes A13, A154 et A28 et la nationale N28 sont accessibles à moins de 20 km. On trouve une boulangerie à proximité.
Elle est proposée à l'achat pour 239 000 €.
Contactez notre agence (JOURDON Michael : 06.43.05.84.44) pour tout renseignement sur la maison, sur les démarches à suivre ou sur les modalités de vente. Maisons Balency Boos est là pour vous accompagner dans tous vos projets immobiliers.
Annonce proposée par un Agent Commercial Partenaire.
Mentions légales
Terrain proposé par un partenaire foncier selon disponibilités et autorisation de publicité au prix de 54 500 €. Hors droit d'enregistrement et frais de notaire. Terrain + Maison proposés au prix de 239 000 € (Hors branchements et raccordements, papiers peints, peintures, revêtement de sol dans les chambres. Tarif modifiable sans préavis). Etiquette énergie : A. Différents modèles disponibles pour ce terrain. Assurances et garanties du constructeur (RC professionnelle, décennale, dommage ouvrage, garantie de remboursement de l'acompte, livraison à prix et délai convenu) : https://www.maisons-balency.fr/informations-legales/. HEXAOM Services est enregistré auprès de l'ORIAS en tant que Courtier en financement, Niveau 1, sous le numéro 14001345.Agence Maisons Balency de Boos (76520)
- Téléphone :
- 02 35 80 66 66
- Adressse :
- Lotissement de la Forge Féret
76520 Boos, France