Maison neuve à
Fontaine-Étoupefour
(14790) Référence :
SU2383764_1
Prix du projet : Maison avec Terrain
prix 379 900 €
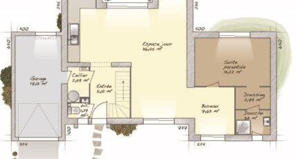
- 6 pièces
- 4 chambres
- Surface maison 90 m2
Fontaine-Étoupefour : maison T6 (90 m²) à vendre
PROCHE DE CAEN - MAISON 6 PIÈCES NEUVE
À 23 km des plages de Ouistreham et à quelques kilomètres du centre-ville de Caen, notre agence Maisons Balency Caen est heureuse de vous proposer cette maison de 6 pièces de 90 m² et de 445 m² de terrain à vendre à Fontaine-Étoupefour (14790). Elle compte quatre chambres, une cuisine et deux salles de bains.
Cette maison possède 2 niveaux. Elle est neuve.
Il y a l'École Primaire Jean de la Fontaine à moins de 10 minutes à pied. Niveau transports en commun, la commune est desservie par les transports scolaires, la gare de Caen se situe à moins de 10 minutes en voiture. L'autoroute A84 et les nationales N814, N13 et N158 sont accessibles à moins de 9 km. Il y a un gymnase omnisport, un city stade, une bibliothèque, une boulangerie, deux commerces, une boucherie-charcuterie et une épicerie dans les environs.
Elle est proposée à l'achat pour 379 900 €.
Prenez contact avec Sophie UCENDO (06-35-39-35-17) pour toute information sur cette maison, sur les modalités de vente ou sur les démarches à suivre. Faites de vos projets immobiliers une réalité avec Maisons Balency Caen.
Mentions légales
Terrain proposé par un partenaire foncier selon disponibilités et autorisation de publicité au prix de 117 000 €. Hors droit d'enregistrement et frais de notaire. Terrain + Maison proposés au prix de 379 900 € (Hors branchements et raccordements, papiers peints, peintures, revêtement de sol dans les chambres. Tarif modifiable sans préavis). Etiquette énergie : A. Différents modèles disponibles pour ce terrain. Assurances et garanties du constructeur (RC professionnelle, décennale, dommage ouvrage, garantie de remboursement de l'acompte, livraison à prix et délai convenu) : https://www.maisons-balency.fr/informations-legales/. HEXAOM Services est enregistré auprès de l'ORIAS en tant que Courtier en financement, Niveau 1, sous le numéro 14001345.Agence Maisons Balency de Caen (14000)
- Téléphone :
- 02 31 50 38 15
- Adressse :
- 133, rue Saint Jean
14000 Caen, France
