Maison neuve à
Fontaine-Étoupefour
(14790) Référence :
SU2383764_2
Prix du projet : Maison avec Terrain
prix 277 900 €
- 4 pièces
- 2 chambres
- Surface maison 70 m2
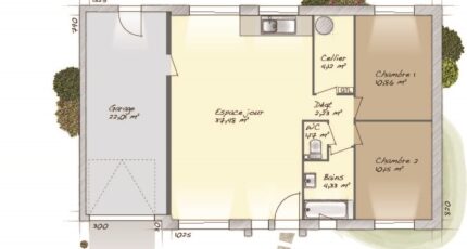
VENTE d'une maison T4 (70 m²) à Fontaine-Étoupefour
PROCHE DE CAEN - MAISON 4 PIÈCES NEUVE
En vente à 23 km des plages de Ouistreham et à deux pas du centre-ville de Caen, laissez vous charmer par cette maison de 4 pièces de plain-pied de 70 m² et de 445 m² de terrain à Fontaine-Étoupefour (14790).
Conçue de plain-pied, elle inclut deux chambres, une cuisine et une salle de bains. La maison est neuve.
L'École Primaire Jean de la Fontaine est implantée à moins de 10 minutes à pied. Niveau transports, la commune est desservie par les transports scolaires. La gare de Caen se situe à moins de 10 minutes en voiture. L'autoroute A84 et les nationales N814, N13 et N158 sont accessibles à moins de 9 km. On trouve un gymnase omnisport, un city stade, une bibliothèque, une boulangerie, deux commerces, une boucherie-charcuterie et une épicerie à proximité.
Elle est proposée à l'achat pour 277 900 €.
Contactez notre agence (UCENDO Sophie : 06-35-39-35-17) pour tout renseignement sur cette maison. Faites de vos projets immobiliers une réalité avec Maisons Balency Caen.
Mentions légales
Terrain proposé par un partenaire foncier selon disponibilités et autorisation de publicité au prix de 117 000 €. Hors droit d'enregistrement et frais de notaire. Terrain + Maison proposés au prix de 277 900 € (Hors branchements et raccordements, papiers peints, peintures, revêtement de sol dans les chambres. Tarif modifiable sans préavis). Etiquette énergie : A. Différents modèles disponibles pour ce terrain. Assurances et garanties du constructeur (RC professionnelle, décennale, dommage ouvrage, garantie de remboursement de l'acompte, livraison à prix et délai convenu) : https://www.maisons-balency.fr/informations-legales/. HEXAOM Services est enregistré auprès de l'ORIAS en tant que Courtier en financement, Niveau 1, sous le numéro 14001345.Agence Maisons Balency de Caen (14000)
- Téléphone :
- 02 31 50 38 15
- Adressse :
- 133, rue Saint Jean
14000 Caen, France
