Maison neuve à
Fontainebleau
(77300) Référence :
KM2272681_1
Prix du projet : Maison avec Terrain
prix 415 000 €
- 7 pièces
- 5 chambres
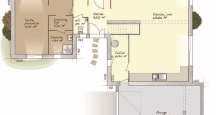
- Surface maison 170 m2
Envie d'un cadre de vie privilégié en Île-de-France ? Découvrez une opportunité rare à 10 minutes de FONTAINEBLEAU : Les Maisons Balency d'Ormoy vous proposent un terrain exclusif de 610 m² idéalement situé pour votre projet de construction neuve.
Imaginez votre future maison : un superbe plain-pied haut-de-gamme de 170 m² (7 pièces), minutieusement conceptualisé par nos architectes. Cette offre s'adresse à tous les profils : jeunes couples, familles nombreuses ou seniors cherchant un confort de plain-pied optimal.
Bénéficiez de la proximité immédiate de Fontainebleau, véritable écrin de verdure et de culture. À seulement 10 minutes en voiture, vous profiterez de la richesse de la forêt domaniale, du Château de Fontainebleau et de toutes ses commodités.
Thomery vous offre un environnement paisible avec un accès facile aux services essentiels. Vous trouverez l'école maternelle et élémentaire du Centre à moins de 5 minutes à pied. Pour vos achats, le centre commercial Carrefour de Villiers-en-Bière est à environ 15 minutes en voiture. Côté transports, la gare de Thomery (Ligne R) vous connecte directement à Paris en 50 minutes, et la gare de Fontainebleau-Avon (Ligne R) est accessible en 10 minutes en voiture.
Ce projet de construction est proposé à partir de 415 000 €.
En choisissant Maisons Balency, du Groupe Hexaôm, le premier constructeur de maisons individuelles en France, vous optez pour une qualité de construction irréprochable et un engagement fort envers l'environnement. Toutes nos réalisations sont conformes à la norme RE2020, garantissant une performance énergétique optimale et un confort de vie exceptionnel.
Votre future maison n'attend que vous ! Joignez-nous dès aujourd'hui au 09 67 70 15 81.
Maisons Balency Agence d'Ormoy / 23 chemin de Tournenfils / 91540 ORMOY
Annonce proposée par un Agent Commercial Partenaire.
Mentions légales
Terrain proposé par un partenaire foncier selon disponibilités et autorisation de publicité au prix de 135 000 €. Hors droit d'enregistrement et frais de notaire. Maison proposée, avec un contrat de construction de maison individuelle, dans le cadre de la loi du 19/12/1990, au prix de 280 000 € (Hors branchements et raccordements, papiers peints, peintures, revêtement de sol dans les chambres, qui sont chiffrés dans les travaux qui restent à charge du client. Tarif modifiable sans préavis). Étiquette énergie : A. Différents modèles disponibles pour ce terrain. Assurances et garanties du constructeur comprises (RC professionnelle, décennale, dommage ouvrage).Agence Maisons Balency de Ormoy (91540)
- Téléphone :
- 09 67 70 15 81
- Adressse :
- 23 chemin de Tournenfils - 1er étage
91540 Ormoy, France
