Maison neuve à
Forges-les-Eaux (76440) Référence : EL2303792_4

Prix du projet : Maison avec Terrain

prix 228 100 €

  • 9 pièces
  • 5 chambres
  • Surface maison 124 m2

VENTE d'une maison T9 (124 m²) à Forges-les-Eaux
IDÉALEMENT SITUÉE - MAISON 9 PIÈCES NEUVE
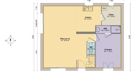
À vendre : nous vous présentons, idéalement située dans Forges-les-Eaux (76440), cette maison de 9 pièces de 124 m² et de 349 m² de terrain. Son intérieur comporte cinq chambres, une cuisine et trois salles de bains.
C'est une maison de 2 niveaux. Elle est neuve.
Cette maison se trouve dans un secteur convoité. Il y a l'École Primaire Privée Sacré-Coeur, l'École Maternelle Marguerite Couturier, l'École Élémentaire Eugène Anne, le Collège Saint-Exupéry et le Lycée Polyvalent Edouard Delamare Deboutteville à moins de 10 minutes à pied. Côté transports en commun, on trouve les gares Serqueux et Sommery à moins de 10 minutes en voiture. Les autoroutes A28 et A29 sont accessibles à moins de 15 km. Il y a un tennis, une bibliothèque, deux supermarchés, des commerces, des boulangeries, deux épiceries et trois boucheries-charcuteries à proximité de la maison.
Elle est proposée à l'achat pour 228 100 €.
Prenez contact avec Dany LEOVANT (tél : 06-09-43-87-49) pour obtenir de plus amples informations sur la maison, sur les modalités de vente ou sur les démarches à suivre. Maisons Balency Boos est là pour vous accompagner dans tous vos projets immobiliers.

Annonce proposée par un Agent Commercial Partenaire.

Mentions légales

Terrain proposé par un partenaire foncier selon disponibilités et autorisation de publicité au prix de 38 500 €. Hors droit d'enregistrement et frais de notaire. Terrain + Maison proposés au prix de 189 600 € (Hors branchements et raccordements, papiers peints, peintures, revêtement de sol dans les chambres. Tarif modifiable sans préavis). Etiquette énergie : A. Différents modèles disponibles pour ce terrain. Assurances et garanties du constructeur (RC professionnelle, décennale, dommage ouvrage, garantie de remboursement de l'acompte, livraison à prix et délai convenu) : https://www.maisons-balency.fr/informations-legales/. HEXAOM Services est enregistré auprès de l'ORIAS en tant que Courtier en financement, Niveau 1, sous le numéro 14001345.

Contactez l'agence de Boos

02 35 80 66 66

    * Champs obligatoires

    Vos informations sont traitées par HEXAOM et transmises à un conseiller commercial qui vous contactera afin de répondre à votre demande. Les plans et images présentés sur notre site sont la propriété d’HEXAOM et ne peuvent pas être reproduits sans son accord. Pour retrouver notre politique de protection des données personnelles et exercer vos droits conformément à la « loi informatique et liberté » cliquez-ici.