Maison neuve à
Forges-les-Eaux (76440) Référence : SEMA9057_4

Prix du projet : Maison avec Terrain

prix 230 000 €

  • 9 pièces
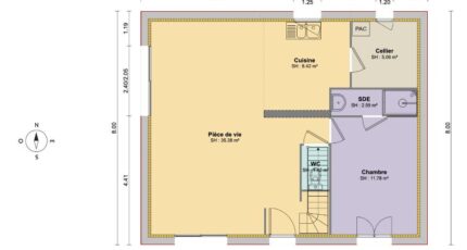
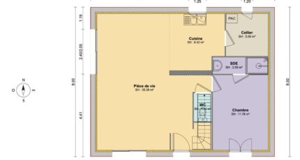
  • 5 chambres
  • Surface maison 124 m2

VENTE : maison de 9 pièces (124 m²) à Forges-les-Eaux
MAISON 9 PIÈCES NEUVE
À vendre : votre agence Maisons Balency Boos est ravie de vous proposer cette maison de 9 pièces de 124 m² à Forges-les-Eaux (76440). Elle se divise en cinq chambres, une cuisine et trois salles de bains.
Le terrain de la maison s'étend sur 300 m².
Cette maison possède 2 niveaux. Elle est neuve.
L'École Primaire Privée Sacré-Coeur, l'École Maternelle Marguerite Couturier, l'École Élémentaire Eugène Anne, le Collège Saint-Exupéry et le Lycée Polyvalent Edouard Delamare Deboutteville sont implantés à moins de 10 minutes à pied. Côté transports en commun, il y a deux gares (Serqueux et Sommery) à moins de 10 minutes en voiture. Les autoroutes A28 et A29 sont accessibles à moins de 15 km. On trouve un tennis, une bibliothèque, deux supermarchés, des commerces, des boulangeries, trois boucheries-charcuteries et une supérette à quelques minutes à peine.
Son prix de vente est de 230 000 €.
Contactez Sébastien MASSON (06-23-38-14-17) pour toute question sur cette maison ou sur les démarches à suivre. Maisons Balency Boos vous accompagne dans tous vos projets immobiliers et à toutes les étapes de votre projet.

Annonce proposée par un Agent Commercial Partenaire.

Mentions légales

Terrain proposé par un partenaire foncier selon disponibilités et autorisation de publicité au prix de 36 000 €. Hors droit d'enregistrement et frais de notaire. Terrain + Maison proposés au prix de 230 000 € (Hors branchements et raccordements, papiers peints, peintures, revêtement de sol dans les chambres. Tarif modifiable sans préavis). Etiquette énergie : A. Différents modèles disponibles pour ce terrain. Assurances et garanties du constructeur (RC professionnelle, décennale, dommage ouvrage, garantie de remboursement de l'acompte, livraison à prix et délai convenu) : https://www.maisons-balency.fr/informations-legales/. HEXAOM Services est enregistré auprès de l'ORIAS en tant que Courtier en financement, Niveau 1, sous le numéro 14001345.

Contactez l'agence de Boos

02 35 80 66 66

    * Champs obligatoires

    Vos informations sont traitées par HEXAOM et transmises à un conseiller commercial qui vous contactera afin de répondre à votre demande. Les plans et images présentés sur notre site sont la propriété d’HEXAOM et ne peuvent pas être reproduits sans son accord. Pour retrouver notre politique de protection des données personnelles et exercer vos droits conformément à la « loi informatique et liberté » cliquez-ici.