Maison neuve à
Franconville
(95130) Référence :
TW2247676_2
Prix du projet : Maison avec Terrain
prix 542 000 €
- 7 pièces
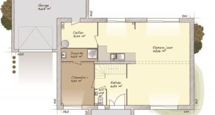
- 4 chambres
- Surface maison 160 m2
Maison de 7 pièces (160 m²) à vendre à Franconville
QUARTIER RECHERCHÉ - MAISON 7 PIÈCES NEUVE
En vente : proche de la station Franconville-Le Plessis-Bouchard du RER C (25 min de Paris), nous vous présentons, située dans un quartier prisé de Franconville (95130), cette maison de 7 pièces de 160 m². Son intérieur comporte quatre chambres, une cuisine et deux salles de bains.
Le terrain du bien s'étend sur 635 m².
Il s'agit d'une maison de 2 niveaux. Elle est neuve.
La maison se trouve dans un secteur convoité. Des établissements scolaires (de la maternelle au lycée) sont implantés à moins de 10 minutes à pied, tout comme une crèche. Niveau transports, il y a deux lignes de RER (C et A) ainsi que 49 gares à moins de 10 minutes en voiture. On trouve une bibliothèque, un bassin de natation, deux tennis, un bowling, des commerces, un supermarché, des boulangeries, des épiceries et un bureau de poste à quelques minutes de la maison.
Elle est à vendre pour la somme de 542 000 €.
Contactez notre agence (WIECZOREK Théo : 07-63-71-02-13) pour obtenir de plus amples renseignements sur la maison. Maisons Balency Moisselles vous accompagne dans tous vos projets immobiliers et à toutes les étapes de votre projet.
Annonce proposée par un Agent Commercial Partenaire.
Mentions légales
Terrain proposé par un partenaire foncier selon disponibilités et autorisation de publicité au prix de 270 000 €. Hors droit d'enregistrement et frais de notaire. Maison proposée, avec un contrat de construction de maison individuelle, dans le cadre de la loi du 19/12/1990, au prix de 272 000 € (Hors branchements et raccordements, papiers peints, peintures, revêtement de sol dans les chambres, qui sont chiffrés dans les travaux qui restent à charge du client. Tarif modifiable sans préavis). Étiquette énergie : A. Différents modèles disponibles pour ce terrain. Assurances et garanties du constructeur comprises (RC professionnelle, décennale, dommage ouvrage).Agence Maisons Balency de Baillet-en-France (95560)
- Téléphone :
- 01 34 46 05 23
- Adressse :
- 81 rue de Paris
95560 Baillet-en-France, France
