Maison neuve à
Franconville
(95130) Référence :
TW2274009_3
Prix du projet : Maison avec Terrain
prix 530 000 €
- 7 pièces
- 4 chambres
- Surface maison 150 m2
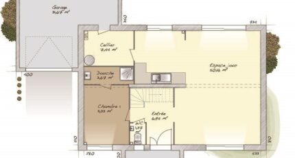
VENTE d'une maison de 7 pièces (150 m²) à Franconville
EMPLACEMENT PRIVILÉGIÉ - MAISON 7 PIÈCES NEUVE
À quelques minutes du RER C (station Franconville-Le Plessis-Bouchard, 25 min de Paris), en vente bénéficiant d'un emplacement d'exception dans Franconville (95130), Maisons Balency Baillet-en-France vous propose cette maison de 7 pièces de 150 m². Son intérieur offre quatre chambres, une cuisine et deux salles de bains.
Le terrain de la propriété s'étend sur 630 m².
Cette maison comporte 2 niveaux. Elle est neuve.
Cette maison est située dans un secteur convoité. Des établissements scolaires de tous types (de la maternelle au lycée) se trouvent à moins de 10 minutes à pied, tout comme une crèche. Côté transports en commun, il y a les lignes de RER C et A ainsi que 49 gares à moins de 10 minutes en voiture. On trouve une bibliothèque, un bassin de natation, deux tennis, un bowling, des commerces, un supermarché, des boulangeries, un bureau de poste et une supérette à quelques minutes à peine.
Elle est proposée à l'achat pour 530 000 €.
Contactez Théo WIECZOREK (07-63-71-02-13) pour plus d'informations sur la propriété, sur les démarches à suivre et sur les modalités de vente. Maisons Balency Baillet-en-France vous accompagne dans tous vos projets immobiliers et à toutes les étapes de l'achat.
Annonce proposée par un Agent Commercial Partenaire.
Mentions légales
Terrain proposé par un partenaire foncier selon disponibilités et autorisation de publicité au prix de 270 000 €. Hors droit d'enregistrement et frais de notaire. Maison proposée, avec un contrat de construction de maison individuelle, dans le cadre de la loi du 19/12/1990, au prix de 260 000 € (Hors branchements et raccordements, papiers peints, peintures, revêtement de sol dans les chambres, qui sont chiffrés dans les travaux qui restent à charge du client. Tarif modifiable sans préavis). Étiquette énergie : A. Différents modèles disponibles pour ce terrain. Assurances et garanties du constructeur comprises (RC professionnelle, décennale, dommage ouvrage).Agence Maisons Balency de Baillet-en-France (95560)
- Téléphone :
- 01 34 46 05 23
- Adressse :
- 81 rue de Paris
95560 Baillet-en-France, France
