Maison neuve à
Franconville
(95130) Référence :
CT2352698_3
Prix du projet : Maison avec Terrain
prix 397 520 €
- 6 pièces
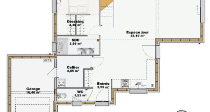
- 5 chambres
- Surface maison 124 m2
VENTE d'une maison T6 (124 m²) à Franconville
EMPLACEMENT PRIVILÉGIÉ - MAISON 6 PIÈCES NEUVE
Au pied de la station Franconville-Le Plessis-Bouchard (Paris à 25 min avec le RER C), nous sommes ravis de vous présenter cette maison de 6 pièces de 124 m² et de 433 m² de terrain à vendre bénéficiant d'un emplacement d'exception dans Franconville (95130).
Cette maison possède 2 niveaux. Elle inclut cinq chambres, une cuisine et deux salles de bains. Cette maison est neuve.
La maison se trouve dans un quartier attractif. Des écoles de tous niveaux sont implantées à moins de 10 minutes à pied, tout comme une structure d'accueil pour les enfants en bas âge. Côté transports, on trouve deux lignes de RER (C et A) ainsi que 49 gares à moins de 10 minutes en voiture. Il y a une bibliothèque, un bassin de natation, deux tennis, un bowling, des commerces, un supermarché, des boulangeries, une supérette et un bureau de poste dans les environs.
Elle est à vendre pour la somme de 397 520 €.
N'hésitez pas à prendre contact avec Christophe TALAMONI (06-49-55-08-27) pour toute information sur la maison ou sur les modalités de vente. Donnez vie à vos projets immobiliers avec Maisons Balency Baillet-en-France.
Annonce proposée par un Agent Commercial Partenaire.
Mentions légales
Terrain proposé par un partenaire foncier selon disponibilités et autorisation de publicité au prix de 169 000 €. Hors droit d'enregistrement et frais de notaire. Terrain + Maison proposés au prix de 397 520 € (Hors branchements et raccordements, papiers peints, peintures, revêtement de sol dans les chambres. Tarif modifiable sans préavis). Etiquette énergie : A. Différents modèles disponibles pour ce terrain. Assurances et garanties du constructeur (RC professionnelle, décennale, dommage ouvrage, garantie de remboursement de l'acompte, livraison à prix et délai convenu) : https://www.maisons-balency.fr/informations-legales/. HEXAOM Services est enregistré auprès de l'ORIAS en tant que Courtier en financement, Niveau 1, sous le numéro 14001345.Agence Maisons Balency de Baillet-en-France (95560)
- Téléphone :
- 01 34 46 05 23
- Adressse :
- 81 rue de Paris
95560 Baillet-en-France, France
