Maison neuve à
Franqueville-Saint-Pierre (76520) Référence : MJ2253447_3

Prix du projet : Maison avec Terrain

prix 419 000 €

  • 4 pièces
  • 3 chambres
  • Surface maison 120 m2

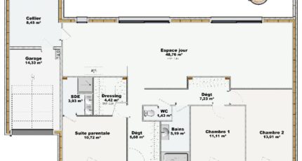
Maison de 4 pièces (120 m²) à vendre à Franqueville-Saint-Pierre
QUARTIER RECHERCHÉ - MAISON 4 PIÈCES NEUVE
À 8 km de Rouen, à vendre dans un quartier prisé de Franqueville-Saint-Pierre (76520), laissez vous charmer par cette maison de 4 pièces de plain-pied de 120 m² et de 1 400 m² de terrain.
Son intérieur est composé de trois chambres, d'une cuisine et de deux salles de bains. La maison est neuve.
Cette maison se situe dans un secteur convoité. On trouve quatre établissements scolaires à moins de 10 minutes à pied. Côté transports en commun, il y a six gares à moins de 10 minutes en voiture. Les autoroutes A13, A150 et A28 et les nationales N28, N338 et N138 sont accessibles à moins de 10 km. On trouve un tennis, une bibliothèque, des commerces, trois boulangeries, une supérette, trois boucheries-charcuteries et un bureau de poste à proximité.
Son prix de vente est de 419 000 €.
Contactez notre agence (AMANE : 0698975793) pour obtenir de plus amples informations sur la maison. AMANE vous accompagne à toutes les étapes de votre projet et dans tous vos projets immobiliers.

Annonce proposée par un Agent Commercial Partenaire.

Mentions légales

Terrain proposé par un partenaire foncier selon disponibilités et autorisation de publicité au prix de 179 000 €. Hors droit d'enregistrement et frais de notaire. Maison proposée, avec un contrat de construction de maison individuelle, dans le cadre de la loi du 19/12/1990, au prix de 240 000 € (Hors branchements et raccordements, papiers peints, peintures, revêtement de sol dans les chambres, qui sont chiffrés dans les travaux qui restent à charge du client. Tarif modifiable sans préavis). Étiquette énergie : A. Différents modèles disponibles pour ce terrain. Assurances et garanties du constructeur comprises (RC professionnelle, décennale, dommage ouvrage).

Contactez l'agence de Boos

02 35 80 66 66

    * Champs obligatoires

    Vos informations sont traitées par HEXAOM et transmises à un conseiller commercial qui vous contactera afin de répondre à votre demande. Les plans et images présentés sur notre site sont la propriété d’HEXAOM et ne peuvent pas être reproduits sans son accord. Pour retrouver notre politique de protection des données personnelles et exercer vos droits conformément à la « loi informatique et liberté » cliquez-ici.