Maison neuve à
Franqueville-Saint-Pierre (76520) Référence : MJ2345403_2

Prix du projet : Maison avec Terrain

prix 419 900 €

  • 6 pièces
  • 5 chambres
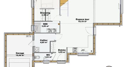
  • Surface maison 114 m2

Maison de 6 pièces (114 m²) à vendre à Franqueville-Saint-Pierre
EMPLACEMENT PRIVILÉGIÉ - MAISON 6 PIÈCES NEUVE
En vente : localisée à quelques kilomètres de Rouen, nous vous présentons, bénéficiant d'un emplacement d'exception dans Franqueville-Saint-Pierre (76520), cette maison de 6 pièces de 114 m².
C'est une maison de 2 niveaux. Son intérieur comporte cinq chambres, une cuisine et deux salles de bains. Cette maison est neuve.
Le terrain de la propriété est de 600 m².
La maison se trouve dans un quartier recherché. Quatre établissements scolaires sont implantés à moins de 10 minutes à pied. Niveau transports, on trouve six gares à moins de 10 minutes en voiture. Les autoroutes A13, A150 et A28 et les nationales N28, N338 et N138 sont accessibles à moins de 10 km. Il y a un tennis, une bibliothèque, des commerces, trois boulangeries, trois boucheries-charcuteries, une supérette et un bureau de poste à quelques minutes du logement.
Elle est à vendre pour la somme de 419 900 €.
N'hésitez pas à prendre contact avec Michael JOURDON (06.43.05.84.44) pour tout renseignement sur la maison et sur les modalités de vente.

Annonce proposée par un Agent Commercial Partenaire.

Mentions légales

Terrain proposé par un partenaire foncier selon disponibilités et autorisation de publicité au prix de 160 000 €. Hors droit d'enregistrement et frais de notaire. Terrain + Maison proposés au prix de 259 900 € (Hors branchements et raccordements, papiers peints, peintures, revêtement de sol dans les chambres. Tarif modifiable sans préavis). Etiquette énergie : A. Différents modèles disponibles pour ce terrain. Assurances et garanties du constructeur (RC professionnelle, décennale, dommage ouvrage, garantie de remboursement de l'acompte, livraison à prix et délai convenu) : https://www.maisons-balency.fr/informations-legales/. HEXAOM Services est enregistré auprès de l'ORIAS en tant que Courtier en financement, Niveau 1, sous le numéro 14001345.

Contactez l'agence de Boos

02 35 80 66 66

    * Champs obligatoires

    Vos informations sont traitées par HEXAOM et transmises à un conseiller commercial qui vous contactera afin de répondre à votre demande. Les plans et images présentés sur notre site sont la propriété d’HEXAOM et ne peuvent pas être reproduits sans son accord. Pour retrouver notre politique de protection des données personnelles et exercer vos droits conformément à la « loi informatique et liberté » cliquez-ici.