Maison neuve à
Franqueville-Saint-Pierre (76520) Référence : MJ2345403_4

Prix du projet : Maison avec Terrain

prix 509 900 €

  • 7 pièces
  • 5 chambres
  • Surface maison 170 m2

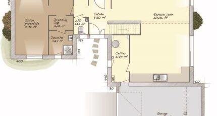
Maison de 7 pièces (170 m²) à vendre à Franqueville-Saint-Pierre
EMPLACEMENT PRIVILÉGIÉ - MAISON 7 PIÈCES NEUVE
À quelques kilomètres de Rouen, découvrez cette maison de 7 pièces de plain-pied de 170 m² à vendre, bénéficiant d'un emplacement d'exception dans Franqueville-Saint-Pierre (76520).
Son intérieur inclut cinq chambres, une cuisine et trois salles de bains. Cette maison est neuve.
Le terrain du bien s'étend sur 600 m².
Cette maison est située dans un quartier recherché. Quatre établissements scolaires se trouvent à moins de 10 minutes à pied. Niveau transports en commun, il y a six gares à moins de 10 minutes en voiture. Les autoroutes A13, A150 et A28 et les nationales N28, N338 et N138 sont accessibles à moins de 10 km. On trouve un tennis, une bibliothèque, des commerces, trois boulangeries, trois boucheries-charcuteries, une supérette et un bureau de poste à proximité de la maison.
Son prix de vente est de 509 900 €.
Prenez contact avec notre agence (Michael JOURDON : 06.43.05.84.44) pour tout renseignement sur la maison et sur les démarches à suivre.

Annonce proposée par un Agent Commercial Partenaire.

Mentions légales

Terrain proposé par un partenaire foncier selon disponibilités et autorisation de publicité au prix de 160 000 €. Hors droit d'enregistrement et frais de notaire. Terrain + Maison proposés au prix de 349 900 € (Hors branchements et raccordements, papiers peints, peintures, revêtement de sol dans les chambres. Tarif modifiable sans préavis). Etiquette énergie : A. Différents modèles disponibles pour ce terrain. Assurances et garanties du constructeur (RC professionnelle, décennale, dommage ouvrage, garantie de remboursement de l'acompte, livraison à prix et délai convenu) : https://www.maisons-balency.fr/informations-legales/. HEXAOM Services est enregistré auprès de l'ORIAS en tant que Courtier en financement, Niveau 1, sous le numéro 14001345.

Contactez l'agence de Boos

02 35 80 66 66

    * Champs obligatoires

    Vos informations sont traitées par HEXAOM et transmises à un conseiller commercial qui vous contactera afin de répondre à votre demande. Les plans et images présentés sur notre site sont la propriété d’HEXAOM et ne peuvent pas être reproduits sans son accord. Pour retrouver notre politique de protection des données personnelles et exercer vos droits conformément à la « loi informatique et liberté » cliquez-ici.