Maison neuve à
Franqueville-Saint-Pierre (76520) Référence : MJ2356297_3

Prix du projet : Maison avec Terrain

prix 279 000 €

  • 5 pièces
  • 3 chambres
  • Surface maison 90 m2

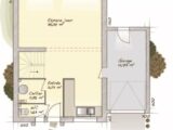
Maison T5 (90 m²) en vente à Franqueville-Saint-Pierre
QUARTIER RECHERCHÉ - MAISON 5 PIÈCES NEUVE
En vente : à deux pas de Rouen, laissez vous charmer par cette maison de 5 pièces de 90 m² et de 650 m² de terrain située dans un quartier prisé de Franqueville-Saint-Pierre (76520).
C'est une maison de 2 niveaux. Elle offre trois chambres, une cuisine et une salle de bains. La maison est neuve.
Cette maison se situe dans un secteur attractif. Il y a quatre établissements scolaires à moins de 10 minutes à pied. Côté transports, on trouve six gares à moins de 10 minutes en voiture. Les autoroutes A13, A150 et A28 et les nationales N28, N338 et N138 sont accessibles à moins de 10 km. Il y a un tennis, une bibliothèque, des commerces, trois boulangeries, trois boucheries-charcuteries, une supérette et un bureau de poste à proximité.
Elle est proposée à l'achat pour 279 000 €.
N'hésitez pas à prendre contact avec Michael JOURDON (06.43.05.84.44) pour obtenir de plus amples informations sur la maison ou sur les modalités de vente.

Annonce proposée par un Agent Commercial Partenaire.

Mentions légales

Terrain proposé par un partenaire foncier selon disponibilités et autorisation de publicité au prix de 105 500 €. Hors droit d'enregistrement et frais de notaire. Maison proposée, avec un contrat de construction de maison individuelle, dans le cadre de la loi du 19/12/1990, au prix de 173 500 € (Hors branchements et raccordements, papiers peints, peintures, revêtement de sol dans les chambres, qui sont chiffrés dans les travaux qui restent à charge du client. Tarif modifiable sans préavis). Étiquette énergie : A. Différents modèles disponibles pour ce terrain. Assurances et garanties du constructeur comprises (RC professionnelle, décennale, dommage ouvrage).

Contactez l'agence de Boos

02 35 80 66 66

    * Champs obligatoires

    Vos informations sont traitées par HEXAOM et transmises à un conseiller commercial qui vous contactera afin de répondre à votre demande. Les plans et images présentés sur notre site sont la propriété d’HEXAOM et ne peuvent pas être reproduits sans son accord. Pour retrouver notre politique de protection des données personnelles et exercer vos droits conformément à la « loi informatique et liberté » cliquez-ici.