Maison neuve à
Franqueville-Saint-Pierre (76520) Référence : AK2388785_10

Prix du projet : Maison avec Terrain

prix 330 000 €

  • 4 pièces
  • 3 chambres
  • Surface maison 120 m2

VENTE d'une maison de 4 pièces (120 m²) à Franqueville-Saint-Pierre
EMPLACEMENT PRIVILÉGIÉ - MAISON 4 PIÈCES NEUVE
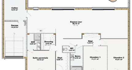
À vendre : située à deux pas de Rouen, nous sommes heureux de vous présenter, bénéficiant d'un emplacement privilégié dans Franqueville-Saint-Pierre (76520), cette maison de 4 pièces de plain-pied de 120 m².
Conçue de plain-pied, elle compte trois chambres, une cuisine et deux salles de bains. Cette maison est neuve.
Le terrain de la propriété s'étend sur 500 m².
Le bien est situé dans un secteur recherché. Il y a quatre établissements scolaires à moins de 10 minutes à pied. Niveau transports en commun, on trouve six gares à moins de 10 minutes en voiture. Les autoroutes A13, A150 et A28 et les nationales N28, N338 et N138 sont accessibles à moins de 10 km. Il y a un tennis, une bibliothèque, des commerces, trois boulangeries, trois boucheries-charcuteries, un bureau de poste et une supérette dans les environs.
Son prix de vente est de 330 000 €.
N'hésitez pas à prendre contact avec Amane JOURDON (tél : 06-98-97-57-93) pour obtenir de plus amples renseignements sur la maison, sur les modalités de vente ou sur les démarches à suivre. Maisons Balency Boos vous accompagne dans tous vos projets immobiliers et à toutes les étapes de votre projet.

Annonce proposée par un Agent Commercial Partenaire.

Mentions légales

Terrain proposé par un partenaire foncier selon disponibilités et autorisation de publicité au prix de 140 000 €. Hors droit d'enregistrement et frais de notaire. Terrain + Maison proposés au prix de 190 000 € (Hors branchements et raccordements, papiers peints, peintures, revêtement de sol dans les chambres. Tarif modifiable sans préavis). Etiquette énergie : A. Différents modèles disponibles pour ce terrain. Assurances et garanties du constructeur (RC professionnelle, décennale, dommage ouvrage, garantie de remboursement de l'acompte, livraison à prix et délai convenu) : https://www.maisons-balency.fr/informations-legales/. HEXAOM Services est enregistré auprès de l'ORIAS en tant que Courtier en financement, Niveau 1, sous le numéro 14001345.

Contactez l'agence de Boos

02 35 80 66 66

    * Champs obligatoires

    Vos informations sont traitées par HEXAOM et transmises à un conseiller commercial qui vous contactera afin de répondre à votre demande. Les plans et images présentés sur notre site sont la propriété d’HEXAOM et ne peuvent pas être reproduits sans son accord. Pour retrouver notre politique de protection des données personnelles et exercer vos droits conformément à la « loi informatique et liberté » cliquez-ici.