Maison neuve à
Franqueville-Saint-Pierre (76520) Référence : AK2388785_11

Prix du projet : Maison avec Terrain

prix 300 000 €

  • 6 pièces
  • 4 chambres
  • Surface maison 91 m2

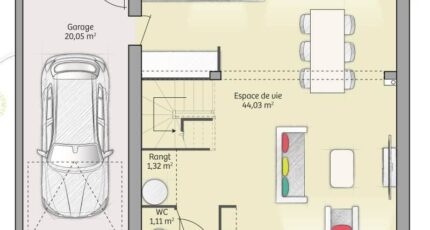
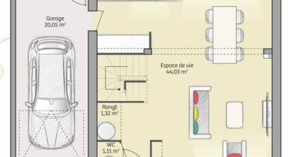
VENTE : maison de 6 pièces (91 m²) à Franqueville-Saint-Pierre
EMPLACEMENT PRIVILÉGIÉ - MAISON 6 PIÈCES NEUVE
À vendre : localisée à deux pas de Rouen, nous sommes ravis de vous proposer cette maison de 6 pièces de 91 m² et de 500 m² de terrain bénéficiant d'un emplacement privilégié dans Franqueville-Saint-Pierre (76520). Son intérieur offre quatre chambres, une cuisine et une salle de bains.
Cette maison compte 2 niveaux. Elle est neuve.
La maison se situe dans un quartier convoité. Quatre établissements scolaires sont implantés à moins de 10 minutes à pied. Niveau transports, on trouve six gares à moins de 10 minutes en voiture. Les autoroutes A13, A150 et A28 et les nationales N28, N338 et N138 sont accessibles à moins de 10 km. Il y a un tennis, une bibliothèque, des commerces, trois boulangeries, trois boucheries-charcuteries, une supérette et un bureau de poste dans les environs.
Elle est à vendre pour la somme de 300 000 €.
N'hésitez pas à prendre contact avec Amane JOURDON (tél : 06-98-97-57-93) pour obtenir de plus amples informations sur la maison. Donnez vie à vos projets immobiliers avec Maisons Balency Boos.

Annonce proposée par un Agent Commercial Partenaire.

Mentions légales

Terrain proposé par un partenaire foncier selon disponibilités et autorisation de publicité au prix de 140 000 €. Hors droit d'enregistrement et frais de notaire. Terrain + Maison proposés au prix de 300 000 € (Hors branchements et raccordements, papiers peints, peintures, revêtement de sol dans les chambres. Tarif modifiable sans préavis). Etiquette énergie : A. Différents modèles disponibles pour ce terrain. Assurances et garanties du constructeur (RC professionnelle, décennale, dommage ouvrage, garantie de remboursement de l'acompte, livraison à prix et délai convenu) : https://www.maisons-balency.fr/informations-legales/. HEXAOM Services est enregistré auprès de l'ORIAS en tant que Courtier en financement, Niveau 1, sous le numéro 14001345.

Contactez l'agence de Boos

02 35 80 66 66

    * Champs obligatoires

    Vos informations sont traitées par HEXAOM et transmises à un conseiller commercial qui vous contactera afin de répondre à votre demande. Les plans et images présentés sur notre site sont la propriété d’HEXAOM et ne peuvent pas être reproduits sans son accord. Pour retrouver notre politique de protection des données personnelles et exercer vos droits conformément à la « loi informatique et liberté » cliquez-ici.