Maison neuve à
Franqueville-Saint-Pierre (76520) Référence : AK2388785_4

Prix du projet : Maison avec Terrain

prix 330 000 €

  • 6 pièces
  • 4 chambres
  • Surface maison 90 m2

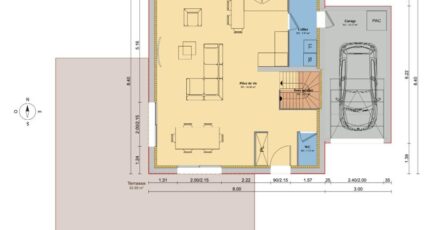
Maison T6 (90 m²) en vente à Franqueville-Saint-Pierre
EMPLACEMENT PRIVILÉGIÉ - MAISON 6 PIÈCES NEUVE
À 8 km de Rouen, votre agence Maisons Balency Boos est heureuse de vous proposer cette maison de 6 pièces de 90 m² et de 500 m² de terrain bénéficiant d'un emplacement privilégié dans Franqueville-Saint-Pierre (76520).
Cette maison possède 2 niveaux. Son intérieur se divise en quatre chambres, une cuisine et deux salles de bains. La maison est neuve.
Cette maison se situe dans un quartier recherché. Quatre établissements scolaires se trouvent à moins de 10 minutes à pied. Niveau transports, il y a six gares à moins de 10 minutes en voiture. Les autoroutes A13, A150 et A28 et les nationales N28, N338 et N138 sont accessibles à moins de 10 km. On trouve un tennis, une bibliothèque, des commerces, trois boulangeries, un bureau de poste, trois boucheries-charcuteries et une supérette à quelques minutes à peine.
Son prix de vente est de 330 000 €.
Prenez contact avec notre agence (JOURDON Amane : 06-98-97-57-93) pour plus de renseignements sur la propriété. Faites de vos projets immobiliers une réalité avec Maisons Balency Boos.

Annonce proposée par un Agent Commercial Partenaire.

Mentions légales

Terrain proposé par un partenaire foncier selon disponibilités et autorisation de publicité au prix de 140 000 €. Hors droit d'enregistrement et frais de notaire. Terrain + Maison proposés au prix de 190 000 € (Hors branchements et raccordements, papiers peints, peintures, revêtement de sol dans les chambres. Tarif modifiable sans préavis). Etiquette énergie : A. Différents modèles disponibles pour ce terrain. Assurances et garanties du constructeur (RC professionnelle, décennale, dommage ouvrage, garantie de remboursement de l'acompte, livraison à prix et délai convenu) : https://www.maisons-balency.fr/informations-legales/. HEXAOM Services est enregistré auprès de l'ORIAS en tant que Courtier en financement, Niveau 1, sous le numéro 14001345.

Contactez l'agence de Boos

02 35 80 66 66

    * Champs obligatoires

    Vos informations sont traitées par HEXAOM et transmises à un conseiller commercial qui vous contactera afin de répondre à votre demande. Les plans et images présentés sur notre site sont la propriété d’HEXAOM et ne peuvent pas être reproduits sans son accord. Pour retrouver notre politique de protection des données personnelles et exercer vos droits conformément à la « loi informatique et liberté » cliquez-ici.