Maison neuve à
Franqueville-Saint-Pierre (76520) Référence : KXA2408148_2

Prix du projet : Maison avec Terrain

prix 434 500 €

  • 5 pièces
  • 3 chambres
  • Surface maison 120 m2

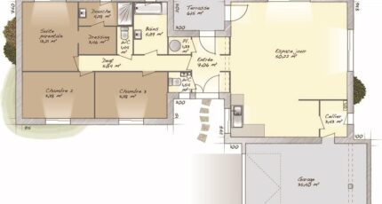
Maison de 5 pièces (120 m²) en vente à Franqueville-Saint-Pierre
EMPLACEMENT PRIVILÉGIÉ - MAISON 5 PIÈCES NEUVE
À 8 km de Rouen, nous sommes ravis de vous proposer cette maison de 5 pièces de plain-pied de 120 m² bénéficiant d'un emplacement privilégié dans Franqueville-Saint-Pierre (76520). Conçue de plain-pied, elle compte trois chambres, une cuisine et deux salles de bains.
Le terrain de la propriété est de 640 m².
La maison est neuve.
Cette maison se trouve dans un secteur convoité. Quatre établissements scolaires sont implantés à moins de 10 minutes à pied. Côté transports en commun, il y a six gares à moins de 10 minutes en voiture. Les autoroutes A13, A150 et A28 et les nationales N28, N338 et N138 sont accessibles à moins de 10 km. On trouve un tennis, une bibliothèque, des commerces, trois boulangeries, une supérette, trois boucheries-charcuteries et un bureau de poste à quelques minutes.
Elle est proposée à l'achat pour 434 500 €.
Contactez notre agence (XAVIER ALVES Kévin : 06-58-91-13-87) pour plus d'informations sur la maison, sur les modalités de vente ou sur les démarches à suivre.

Annonce proposée par un Agent Commercial Partenaire.

Mentions légales

Terrain proposé par un partenaire foncier selon disponibilités et autorisation de publicité au prix de 178 000 €. Hors droit d'enregistrement et frais de notaire. Terrain + Maison proposés au prix de 434 500 € (Hors branchements et raccordements, papiers peints, peintures, revêtement de sol dans les chambres. Tarif modifiable sans préavis). Etiquette énergie : A. Différents modèles disponibles pour ce terrain. Assurances et garanties du constructeur (RC professionnelle, décennale, dommage ouvrage, garantie de remboursement de l'acompte, livraison à prix et délai convenu) : https://www.maisons-balency.fr/informations-legales/. HEXAOM Services est enregistré auprès de l'ORIAS en tant que Courtier en financement, Niveau 1, sous le numéro 14001345.

Contactez l'agence de Boos

02 35 80 66 66

    * Champs obligatoires

    Vos informations sont traitées par HEXAOM et transmises à un conseiller commercial qui vous contactera afin de répondre à votre demande. Les plans et images présentés sur notre site sont la propriété d’HEXAOM et ne peuvent pas être reproduits sans son accord. Pour retrouver notre politique de protection des données personnelles et exercer vos droits conformément à la « loi informatique et liberté » cliquez-ici.