Maison neuve à
Franqueville-Saint-Pierre (76520) Référence : KXA2408148_3

Prix du projet : Maison avec Terrain

prix 419 000 €

  • 7 pièces
  • 4 chambres
  • Surface maison 125 m2

VENTE : maison T7 (125 m²) à Franqueville-Saint-Pierre
EMPLACEMENT PRIVILÉGIÉ - MAISON 7 PIÈCES NEUVE
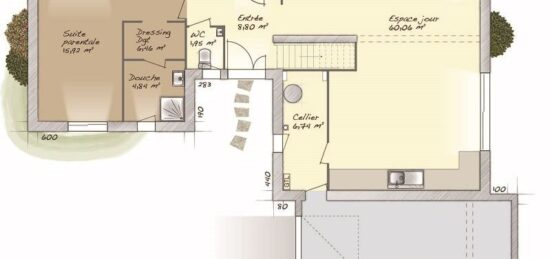
À vendre à deux pas de Rouen, nous vous présentons cette maison de 7 pièces de 125 m² bénéficiant d'un emplacement d'exception dans Franqueville-Saint-Pierre (76520). Son intérieur est composé de quatre chambres, d'une cuisine et de trois salles de bains.
Le terrain de cette maison est de 640 m².
Il s'agit d'une maison de 2 niveaux. Elle est neuve.
Cette maison est située dans un quartier prisé. Quatre établissements scolaires se trouvent à moins de 10 minutes à pied. Côté transports, il y a six gares à moins de 10 minutes en voiture. Les autoroutes A13, A150 et A28 et les nationales N28, N338 et N138 sont accessibles à moins de 10 km. On trouve un tennis, une bibliothèque, des commerces, trois boulangeries, trois boucheries-charcuteries, un bureau de poste et une supérette à quelques minutes du logement.
Elle est proposée à l'achat pour 419 000 €.
Prenez contact avec notre agence (Kévin XAVIER ALVES : 06-58-91-13-87) pour obtenir de plus amples informations sur la propriété et sur les démarches à suivre. Maisons Balency Boos vous accompagne dans tous vos projets immobiliers et dans toutes vos démarches.

Annonce proposée par un Agent Commercial Partenaire.

Mentions légales

Terrain proposé par un partenaire foncier selon disponibilités et autorisation de publicité au prix de 178 000 €. Hors droit d'enregistrement et frais de notaire. Terrain + Maison proposés au prix de 419 000 € (Hors branchements et raccordements, papiers peints, peintures, revêtement de sol dans les chambres. Tarif modifiable sans préavis). Etiquette énergie : A. Différents modèles disponibles pour ce terrain. Assurances et garanties du constructeur (RC professionnelle, décennale, dommage ouvrage, garantie de remboursement de l'acompte, livraison à prix et délai convenu) : https://www.maisons-balency.fr/informations-legales/. HEXAOM Services est enregistré auprès de l'ORIAS en tant que Courtier en financement, Niveau 1, sous le numéro 14001345.

Contactez l'agence de Boos

02 35 80 66 66

    * Champs obligatoires

    Vos informations sont traitées par HEXAOM et transmises à un conseiller commercial qui vous contactera afin de répondre à votre demande. Les plans et images présentés sur notre site sont la propriété d’HEXAOM et ne peuvent pas être reproduits sans son accord. Pour retrouver notre politique de protection des données personnelles et exercer vos droits conformément à la « loi informatique et liberté » cliquez-ici.