Maison neuve à
Franqueville-Saint-Pierre (76520) Référence : KXA2408148_4

Prix du projet : Maison avec Terrain

prix 530 000 €

  • 8 pièces
  • 5 chambres
  • Surface maison 200 m2

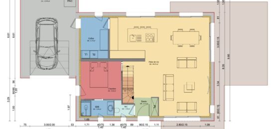
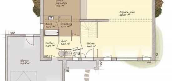
VENTE d'une maison T8 (200 m²) à Franqueville-Saint-Pierre
EMPLACEMENT PRIVILÉGIÉ - MAISON 8 PIÈCES NEUVE
À deux pas de Rouen, en vente bénéficiant d'un emplacement privilégié dans Franqueville-Saint-Pierre (76520), votre agence Maisons Balency Boos est ravie de vous présenter cette maison de 8 pièces de 200 m² et de 640 m² de terrain.
Cette maison comporte 2 niveaux. Son intérieur dispose de cinq chambres, d'une cuisine et de deux salles de bains. La maison est neuve.
Cette maison se situe dans un secteur attractif. Il y a quatre établissements scolaires à moins de 10 minutes à pied. Côté transports, on trouve six gares à moins de 10 minutes en voiture. Les autoroutes A13, A150 et A28 et les nationales N28, N338 et N138 sont accessibles à moins de 10 km. Il y a un tennis, une bibliothèque, des commerces, trois boulangeries, trois boucheries-charcuteries, une supérette et un bureau de poste dans les environs.
Elle est à vendre pour la somme de 530 000 €.
Contactez Kévin XAVIER ALVES (06-58-91-13-87) pour tout renseignement sur la maison ou sur les démarches à suivre. Maisons Balency Boos vous accompagne à toutes les étapes de l'achat et dans tous vos projets immobiliers.

Annonce proposée par un Agent Commercial Partenaire.

Mentions légales

Terrain proposé par un partenaire foncier selon disponibilités et autorisation de publicité au prix de 178 000 €. Hors droit d'enregistrement et frais de notaire. Terrain + Maison proposés au prix de 530 000 € (Hors branchements et raccordements, papiers peints, peintures, revêtement de sol dans les chambres. Tarif modifiable sans préavis). Etiquette énergie : A. Différents modèles disponibles pour ce terrain. Assurances et garanties du constructeur (RC professionnelle, décennale, dommage ouvrage, garantie de remboursement de l'acompte, livraison à prix et délai convenu) : https://www.maisons-balency.fr/informations-legales/. HEXAOM Services est enregistré auprès de l'ORIAS en tant que Courtier en financement, Niveau 1, sous le numéro 14001345.

Contactez l'agence de Boos

02 35 80 66 66

    * Champs obligatoires

    Vos informations sont traitées par HEXAOM et transmises à un conseiller commercial qui vous contactera afin de répondre à votre demande. Les plans et images présentés sur notre site sont la propriété d’HEXAOM et ne peuvent pas être reproduits sans son accord. Pour retrouver notre politique de protection des données personnelles et exercer vos droits conformément à la « loi informatique et liberté » cliquez-ici.