Maison neuve à
Frémainville
(95450) Référence :
AF2327872_2
Prix du projet : Maison avec Terrain
prix 340 000 €
- 5 pièces
- 3 chambres
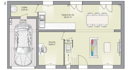
- Surface maison 90 m2
Frémainville : maison de 5 pièces (90 m²) à vendre
PROCHE D'ARGENTEUIL - MAISON 5 PIÈCES NEUVE
En vente : à proximité du Transilien J (gare de Meulan-Hardricourt, 45 min de Paris), Maisons Balency Baillet-en-France vous propose cette maison de 5 pièces de 90 m² à Frémainville (95450). Son intérieur est composé de trois chambres, d'une cuisine et d'une salle de bains.
Le terrain de la propriété s'étend sur 540 m².
Il s'agit d'une maison de 2 niveaux. Elle est neuve.
Il y a une école primaire dans le quartier. Niveau transports en commun, on trouve sept gares à moins de 10 minutes en voiture. Il y a une bibliothèque et un tennis à quelques minutes.
Elle est à vendre pour la somme de 340 000 €.
Prenez contact avec Antoine FLIPPE (tél : 07-82-59-37-75) pour obtenir de plus amples informations sur cette maison.
Annonce proposée par un Agent Commercial Partenaire.
Mentions légales
Terrain proposé par un partenaire foncier selon disponibilités et autorisation de publicité au prix de 140 000 €. Hors droit d'enregistrement et frais de notaire. Maison proposée, avec un contrat de construction de maison individuelle, dans le cadre de la loi du 19/12/1990, au prix de 200 000 € (Hors branchements et raccordements, papiers peints, peintures, revêtement de sol dans les chambres, qui sont chiffrés dans les travaux qui restent à charge du client. Tarif modifiable sans préavis). Étiquette énergie : A. Différents modèles disponibles pour ce terrain. Assurances et garanties du constructeur comprises (RC professionnelle, décennale, dommage ouvrage).Agence Maisons Balency de Baillet-en-France (95560)
- Téléphone :
- 01 34 46 05 23
- Adressse :
- 81 rue de Paris
95560 Baillet-en-France, France
