Maison neuve à
Frépillon
(95740) Référence :
WB2455536_1
Prix du projet : Maison avec Terrain
prix 399 000 €
- 5 pièces
- 3 chambres
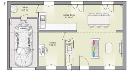
- Surface maison 90 m2
Frépillon : maison F5 (90 m²) en vente
PROCHE DE PARIS - MAISON 5 PIÈCES NEUVE
À vendre : à quelques minutes de la gare (Paris à 35 min avec le Transilien H), nous vous présentons à Frépillon (95740), cette maison de 5 pièces de 90 m² et de 610 m² de terrain. Son intérieur propose trois chambres, une cuisine et une salle de bains.
Il s'agit d'une maison de 2 niveaux. Elle est neuve.
Il y a l'École Élémentaire Vieille Fontaine et l'École Maternelle Vieille Fontaine à moins de 10 minutes à pied. Côté transports en commun, on trouve la gare Frépillon à quelques pas de la maison. On trouve une bibliothèque, un tennis, trois commerces, une supérette et une épicerie à quelques minutes.
Elle est proposée à l'achat pour 399 000 €.
N'hésitez pas à prendre contact avec William BIDAN (tél : 06-22-45-69-29) pour plus de renseignements sur la maison. Maisons Balency Baillet-en-France est là pour vous accompagner dans toutes vos démarches.
Annonce proposée par un Agent Commercial Partenaire.
Mentions légales
Terrain proposé par un partenaire foncier selon disponibilités et autorisation de publicité au prix de 220 000 €. Hors droit d'enregistrement et frais de notaire. Terrain + Maison proposés au prix de 399 000 € (Hors branchements et raccordements, papiers peints, peintures, revêtement de sol dans les chambres. Tarif modifiable sans préavis). Etiquette énergie : A. Différents modèles disponibles pour ce terrain. Assurances et garanties du constructeur (RC professionnelle, décennale, dommage ouvrage, garantie de remboursement de l'acompte, livraison à prix et délai convenu) : https://www.maisons-balency.fr/informations-legales/. HEXAOM Services est enregistré auprès de l'ORIAS en tant que Courtier en financement, Niveau 1, sous le numéro 14001345.Agence Maisons Balency de Baillet-en-France (95560)
- Téléphone :
- 01 34 46 05 23
- Adressse :
- 81 rue de Paris
95560 Baillet-en-France, France
