Maison neuve à
Frépillon
(95740) Référence :
WB2455536_2
Prix du projet : Maison avec Terrain
prix 475 000 €
- 6 pièces
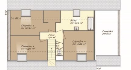
- 4 chambres
- Surface maison 117 m2
Maison de 6 pièces (117 m²) en vente à Frépillon
PROCHE DE PARIS - MAISON 6 PIÈCES NEUVE
En vente : à deux pas de la gare (Paris à 35 min avec le Transilien H), Maisons Balency Baillet-en-France vous présente cette maison de 6 pièces de plain-pied de 117 m² et de 610 m² de terrain à Frépillon (95740). Son intérieur compte quatre chambres, une cuisine et deux salles de bains.
Cette maison est neuve.
L'École Élémentaire Vieille Fontaine et l'École Maternelle Vieille Fontaine sont implantées à moins de 10 minutes à pied. Côté transports, il y a la gare Frépillon juste à côté. On trouve une bibliothèque, un tennis, trois commerces, une épicerie et une supérette à proximité de la maison.
Elle est proposée à l'achat pour 475 000 €.
Prenez contact avec William BIDAN (tél : 06-22-45-69-29) pour tout renseignement sur la propriété, sur les démarches à suivre ou sur les modalités de vente.
Annonce proposée par un Agent Commercial Partenaire.
Mentions légales
Terrain proposé par un partenaire foncier selon disponibilités et autorisation de publicité au prix de 220 000 €. Hors droit d'enregistrement et frais de notaire. Terrain + Maison proposés au prix de 475 000 € (Hors branchements et raccordements, papiers peints, peintures, revêtement de sol dans les chambres. Tarif modifiable sans préavis). Etiquette énergie : A. Différents modèles disponibles pour ce terrain. Assurances et garanties du constructeur (RC professionnelle, décennale, dommage ouvrage, garantie de remboursement de l'acompte, livraison à prix et délai convenu) : https://www.maisons-balency.fr/informations-legales/. HEXAOM Services est enregistré auprès de l'ORIAS en tant que Courtier en financement, Niveau 1, sous le numéro 14001345.Agence Maisons Balency de Baillet-en-France (95560)
- Téléphone :
- 01 34 46 05 23
- Adressse :
- 81 rue de Paris
95560 Baillet-en-France, France
