Maison neuve à
Fresles (76270) Référence : RC2396566_1

Prix du projet : Maison avec Terrain

prix 159 136 €

  • 6 pièces
  • 3 chambres
  • Surface maison 76 m2

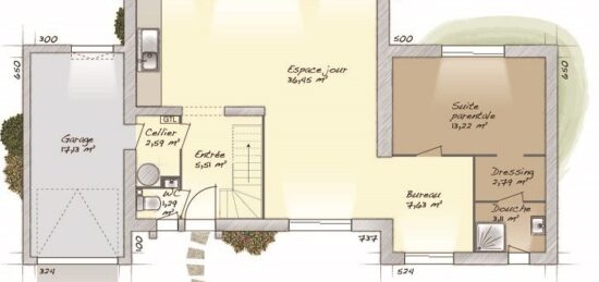
A construire : maison T6 (76 m²) à Fresles
IDÉALEMENT SITUÉE - MAISON 6 PIÈCES NEUVE
En vente à 30 km de la Manche et à 27 km de Dieppe, Maisons Balency Boos vous présente, idéalement située dans Fresles (76270), cette maison de 6 pièces de plain-pied de 76 m².
Elle offre trois chambres, une cuisine et une salle de bains. La maison est neuve.
Le terrain de la propriété est de 2 012 m².
La maison est située dans un secteur recherché. Des écoles du primaire et du secondaire sont implantées à moins de 10 minutes en voiture, tout comme une crèche à moins de 10 minutes à pied. Les autoroutes A28 et A29 sont accessibles à moins de 10 km. On trouve des bibliothèques, quatre tennis, des commerces, des boulangeries, trois supermarchés, trois bureaux de poste et des boucheries-charcuteries dans les environs.
Elle est proposée à l'achat pour 159 136 €.
Contactez notre agence (RENIER Célia : 07-62-90-87-77) pour obtenir de plus amples informations sur la maison ou sur les démarches à suivre. Maisons Balency Boos vous accompagne dans tous vos projets immobiliers et à toutes les étapes de votre projet.

Annonce proposée par un Agent Commercial Partenaire.

Mentions légales

Terrain proposé par un partenaire foncier selon disponibilités et autorisation de publicité au prix de 36 540 €. Hors droit d'enregistrement et frais de notaire. Terrain + Maison proposés au prix de 159 136 € (Hors branchements et raccordements, papiers peints, peintures, revêtement de sol dans les chambres. Tarif modifiable sans préavis). Etiquette énergie : A. Différents modèles disponibles pour ce terrain. Assurances et garanties du constructeur (RC professionnelle, décennale, dommage ouvrage, garantie de remboursement de l'acompte, livraison à prix et délai convenu) : https://www.maisons-balency.fr/informations-legales/. HEXAOM Services est enregistré auprès de l'ORIAS en tant que Courtier en financement, Niveau 1, sous le numéro 14001345.

Contactez l'agence de Boos

02 35 80 66 66

    * Champs obligatoires

    Vos informations sont traitées par HEXAOM et transmises à un conseiller commercial qui vous contactera afin de répondre à votre demande. Les plans et images présentés sur notre site sont la propriété d’HEXAOM et ne peuvent pas être reproduits sans son accord. Pour retrouver notre politique de protection des données personnelles et exercer vos droits conformément à la « loi informatique et liberté » cliquez-ici.