Maison neuve à
Gabian (34320) Référence : HM2299874_2

Prix du projet : Maison avec Terrain

prix 369 000 €

  • 5 pièces
  • 3 chambres
  • Surface maison 105 m2

Gabian : maison de 5 pièces (105 m²) à vendre
EMPLACEMENT PRIVILÉGIÉ - MAISON 5 PIÈCES NEUVE
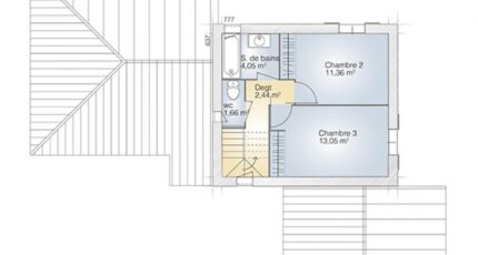
À 28 km de la côte méditerranéenne et à 19 km de Béziers, en vente bénéficiant d'un emplacement d'exception dans Gabian (34320), nous vous présentons cette maison de 5 pièces de 105 m². Son intérieur compte trois chambres, une cuisine et une salle de bains.
Le terrain du bien est de 818 m².
Il s'agit d'une maison de 2 niveaux. Elle est neuve.
Cette maison se trouve dans un secteur convoité. On y trouve une école primaire. Côté transports, il y a la gare Magalas à moins de 10 minutes en voiture. Les autoroutes A75 et A9 sont accessibles à moins de 19 km. On trouve une bibliothèque, une boulangerie, une épicerie et une poissonnerie à quelques minutes de la maison.
Elle est à vendre pour la somme de 369 000 €.
Prenez contact avec notre agence (MALDONADO Hervé : 06-72-60-44-42) pour plus de renseignements sur le bien. Maisons Balency Pézenas vous accompagne à toutes les étapes de l'achat et dans toutes vos démarches.

Mentions légales

Terrain proposé par un partenaire foncier selon disponibilités et autorisation de publicité au prix de 120 000 €. Hors droit d'enregistrement et frais de notaire. Terrain + Maison proposés au prix de 249 000 € (Hors branchements et raccordements, papiers peints, peintures, revêtement de sol dans les chambres. Tarif modifiable sans préavis). Etiquette énergie : A. Différents modèles disponibles pour ce terrain. Assurances et garanties du constructeur (RC professionnelle, décennale, dommage ouvrage, garantie de remboursement de l'acompte, livraison à prix et délai convenu) : https://www.maisons-balency.fr/informations-legales/. HEXAOM Services est enregistré auprès de l'ORIAS en tant que Courtier en financement, Niveau 1, sous le numéro 14001345.

Contactez l'agence de Pézenas

04 99 43 05 21

    * Champs obligatoires

    Vos informations sont traitées par HEXAOM et transmises à un conseiller commercial qui vous contactera afin de répondre à votre demande. Les plans et images présentés sur notre site sont la propriété d’HEXAOM et ne peuvent pas être reproduits sans son accord. Pour retrouver notre politique de protection des données personnelles et exercer vos droits conformément à la « loi informatique et liberté » cliquez-ici.