Maison neuve à
Gagny
(93220) Référence :
TW2324522_4
Prix du projet : Maison avec Terrain
prix 329 000 €
- 6 pièces
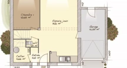
- 4 chambres
- Surface maison 90 m2
Gagny : maison F6 (90 m²) à vendre
EMPLACEMENT PRIVILÉGIÉ - MAISON 6 PIÈCES NEUVE
À deux pas de la station Le Chénay Gagny du RER E (20 min de Paris), nous vous présentons à vendre, bénéficiant d'un emplacement d'exception dans Gagny (93220), cette maison de 6 pièces de 90 m². Son intérieur comporte quatre chambres, une cuisine et une salle de bains.
Le terrain de la propriété s'étend sur 350 m².
C'est une maison de 2 niveaux. Elle est neuve.
La maison se trouve dans un quartier recherché. Il y a des écoles de tous niveaux à moins de 10 minutes à pied. Niveau transports en commun, on trouve la station de RER Le Chénay-Gagny (ligne E) ainsi que la gare Le Chénay Gagny à proximité. Il y a une bibliothèque, un bassin de natation, un tennis, des boulangeries, des commerces, une poissonnerie, un bureau de poste et une supérette à quelques minutes.
Elle est proposée à l'achat pour 329 000 €.
Contactez Théo WIECZOREK (07-63-71-02-13) pour plus de renseignements sur la maison, sur les modalités de vente et sur les démarches à suivre. Donnez vie à vos projets immobiliers avec Maisons Balency Baillet-en-France.
Annonce proposée par un Agent Commercial Partenaire.
Mentions légales
Terrain proposé par un partenaire foncier selon disponibilités et autorisation de publicité au prix de 174 000 €. Hors droit d'enregistrement et frais de notaire. Maison proposée, avec un contrat de construction de maison individuelle, dans le cadre de la loi du 19/12/1990, au prix de 155 000 € (Hors branchements et raccordements, papiers peints, peintures, revêtement de sol dans les chambres, qui sont chiffrés dans les travaux qui restent à charge du client. Tarif modifiable sans préavis). Étiquette énergie : A. Différents modèles disponibles pour ce terrain. Assurances et garanties du constructeur comprises (RC professionnelle, décennale, dommage ouvrage).Agence Maisons Balency de Baillet-en-France (95560)
- Téléphone :
- 01 34 46 05 23
- Adressse :
- 81 rue de Paris
95560 Baillet-en-France, France
