Maison neuve à
Gambais
(78950) Référence :
TD2255584_2
Prix du projet : Maison avec Terrain
prix 480 700 €
- 7 pièces
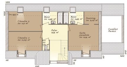
- 4 chambres
- Surface maison 125 m2
VENTE : maison de 7 pièces (125 m²) à Gambais
IDÉALEMENT SITUÉE - MAISON 7 PIÈCES NEUVE
En vente : à quelques minutes du Transilien N (gare d'Orgerus-Béhoust, 45 min de Paris), notre agence Maisons Balency Coignières est ravie de vous présenter, idéalement située dans Gambais (78950), cette maison de 7 pièces de 125 m² et de 876 m² de terrain.
Il s'agit d'une maison de 2 niveaux. Son intérieur dispose de quatre chambres, d'une cuisine et de trois salles de bains. Cette maison est neuve.
La propriété est située dans un secteur convoité. Une école primaire y est implantée. Il y a un tennis, une bibliothèque, un commerce, une boulangerie et une épicerie à proximité.
Son prix de vente est de 480 700 €.
Contactez Thibault DUTEURTRE (06-23-41-73-81) pour obtenir de plus amples informations sur la maison. Maisons Balency Coignières vous accompagne à toutes les étapes de votre projet et dans toutes vos démarches.
Annonce proposée par un Agent Commercial Partenaire.
Mentions légales
Terrain proposé par un partenaire foncier selon disponibilités et autorisation de publicité au prix de 169 000 €. Hors droit d'enregistrement et frais de notaire. Maison proposée, avec un contrat de construction de maison individuelle, dans le cadre de la loi du 19/12/1990, au prix de 311 700 € (Hors branchements et raccordements, papiers peints, peintures, revêtement de sol dans les chambres, qui sont chiffrés dans les travaux qui restent à charge du client. Tarif modifiable sans préavis). Étiquette énergie : A. Différents modèles disponibles pour ce terrain. Assurances et garanties du constructeur comprises (RC professionnelle, décennale, dommage ouvrage).Agence Maisons Balency de Coignières (78310)
- Téléphone :
- 01 34 61 42 59
- Adressse :
- Domexpo Ouest
78310 Coignières, France
