Maison neuve à
Gambais
(78950) Référence :
TD2300873_3
Prix du projet : Maison avec Terrain
prix 475 000 €
- 8 pièces
- 5 chambres
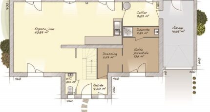
- Surface maison 145 m2
VENTE : maison de 8 pièces (145 m²) à Gambais
IDÉALEMENT SITUÉE - MAISON 8 PIÈCES NEUVE
À vendre : à proximité de la gare d'Orgerus-Béhoust (Paris à 45 min par le Transilien N), Maisons Balency Coignières vous propose, idéalement située dans Gambais (78950), cette maison de 8 pièces de 145 m² et de 1 137 m² de terrain.
C'est une maison de 2 niveaux. Elle offre cinq chambres, une cuisine et trois salles de bains. Cette maison est neuve.
La maison est située dans un quartier attractif. On y trouve une école primaire. Il y a un tennis, une bibliothèque, un commerce, une boulangerie et une épicerie dans les environs.
Son prix de vente est de 475 000 €.
Contactez Thibault DUTEURTRE (tél : 06-23-41-73-81) pour plus d'informations sur la maison ou sur les démarches à suivre. Maisons Balency Coignières est là pour vous accompagner dans tous vos projets immobiliers.
Annonce proposée par un Agent Commercial Partenaire.
Mentions légales
Terrain proposé par un partenaire foncier selon disponibilités et autorisation de publicité au prix de 130 000 €. Hors droit d'enregistrement et frais de notaire. Maison proposée, avec un contrat de construction de maison individuelle, dans le cadre de la loi du 19/12/1990, au prix de 345 000 € (Hors branchements et raccordements, papiers peints, peintures, revêtement de sol dans les chambres, qui sont chiffrés dans les travaux qui restent à charge du client. Tarif modifiable sans préavis). Étiquette énergie : A. Différents modèles disponibles pour ce terrain. Assurances et garanties du constructeur comprises (RC professionnelle, décennale, dommage ouvrage).Agence Maisons Balency de Coignières (78310)
- Téléphone :
- 01 34 61 42 59
- Adressse :
- Domexpo Ouest
78310 Coignières, France
