Maison neuve à
Gambais
(78950) Référence :
TD2305237_2
Prix du projet : Maison avec Terrain
prix 415 000 €
- 6 pièces
- 4 chambres
- Surface maison 117 m2
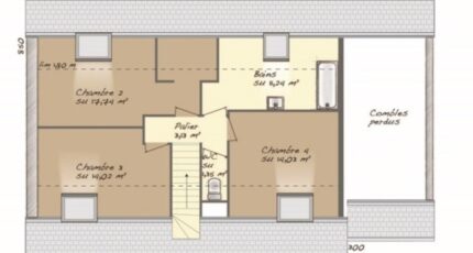
VENTE d'une maison de 6 pièces (117 m²) à Gambais
IDÉALEMENT SITUÉE - MAISON 6 PIÈCES NEUVE
À quelques minutes du Transilien N (gare d'Orgerus-Béhoust, 45 min de Paris), Maisons Balency Coignières vous propose cette maison de 6 pièces de plain-pied de 117 m² et de 600 m² de terrain idéalement située dans Gambais (78950). Conçue de plain-pied, elle est composée de quatre chambres, d'une cuisine et de deux salles de bains.
La maison est neuve.
Cette maison se situe dans un secteur convoité. Une école primaire y est implantée. Il y a un tennis, une bibliothèque, un commerce, une boulangerie et une épicerie dans les environs.
Son prix de vente est de 415 000 €.
Contactez notre agence (Thibault DUTEURTRE : 06-23-41-73-81) pour plus d'informations sur la maison.
Annonce proposée par un Agent Commercial Partenaire.
Mentions légales
Terrain proposé par un partenaire foncier selon disponibilités et autorisation de publicité au prix de 159 900 €. Hors droit d'enregistrement et frais de notaire. Maison proposée, avec un contrat de construction de maison individuelle, dans le cadre de la loi du 19/12/1990, au prix de 255 100 € (Hors branchements et raccordements, papiers peints, peintures, revêtement de sol dans les chambres, qui sont chiffrés dans les travaux qui restent à charge du client. Tarif modifiable sans préavis). Étiquette énergie : A. Différents modèles disponibles pour ce terrain. Assurances et garanties du constructeur comprises (RC professionnelle, décennale, dommage ouvrage).Agence Maisons Balency de Coignières (78310)
- Téléphone :
- 01 34 61 42 59
- Adressse :
- Domexpo Ouest
78310 Coignières, France
