Maison neuve à
Gambais (78950) Référence : AHT2362063_2

Prix du projet : Maison avec Terrain

prix 531 900 €

  • 9 pièces
  • 4 chambres
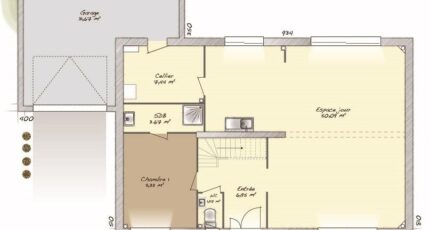
  • Surface maison 186 m2

Gambais : maison F9 (186 m²) à vendre
IDÉALEMENT SITUÉE - MAISON 9 PIÈCES NEUVE
À côté du Transilien N (gare d'Orgerus-Béhoust, 45 min de Paris), découvrez cette maison de 9 pièces de 186 m² et de 600 m² de terrain à vendre idéalement située dans Gambais (78950). Son intérieur est composé de quatre chambres, d'une cuisine et de deux salles de bains.
Cette maison possède 2 niveaux. Elle est neuve.
Cette maison se situe dans un secteur prisé. Une école primaire y est implantée. Niveau transports en commun, il y a quatre gares à moins de 10 minutes en voiture. On trouve un tennis, une bibliothèque, un commerce, une boulangerie et une épicerie à quelques minutes de la maison.
Elle est à vendre pour la somme de 531 900 €.
N'hésitez pas à prendre contact avec notre agence (Azzedine HAMADOU TCHOFO : 07-51-44-47-96) pour toute question sur la maison. Maisons Balency Louviers est là pour vous accompagner à toutes les étapes de l'achat.

Annonce proposée par un Agent Commercial Partenaire.

Mentions légales

Terrain proposé par un partenaire foncier selon disponibilités et autorisation de publicité au prix de 159 900 €. Hors droit d'enregistrement et frais de notaire. Terrain + Maison proposés au prix de 531 900 € (Hors branchements et raccordements, papiers peints, peintures, revêtement de sol dans les chambres. Tarif modifiable sans préavis). Etiquette énergie : A. Différents modèles disponibles pour ce terrain. Assurances et garanties du constructeur (RC professionnelle, décennale, dommage ouvrage, garantie de remboursement de l'acompte, livraison à prix et délai convenu) : https://www.maisons-balency.fr/informations-legales/. HEXAOM Services est enregistré auprès de l'ORIAS en tant que Courtier en financement, Niveau 1, sous le numéro 14001345.

Contactez l'agence de Louviers

02 32 51 43 53

    * Champs obligatoires

    Vos informations sont traitées par HEXAOM et transmises à un conseiller commercial qui vous contactera afin de répondre à votre demande. Les plans et images présentés sur notre site sont la propriété d’HEXAOM et ne peuvent pas être reproduits sans son accord. Pour retrouver notre politique de protection des données personnelles et exercer vos droits conformément à la « loi informatique et liberté » cliquez-ici.