Maison neuve à
Gambais
(78950) Référence :
TD2413286_3
Prix du projet : Maison avec Terrain
prix 475 000 €
- 8 pièces
- 5 chambres
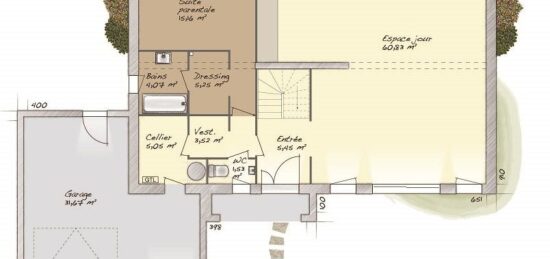
- Surface maison 145 m2
Gambais : maison de 8 pièces (145 m²) à vendre
IDÉALEMENT SITUÉE - MAISON 8 PIÈCES NEUVE
À deux pas de la gare d'Orgerus-Béhoust (Paris à 45 min avec le Transilien N), notre agence Maisons Balency Coignières est ravie de vous proposer cette maison de 8 pièces de 145 m² à vendre idéalement située dans Gambais (78950). Elle offre cinq chambres, une cuisine et trois salles de bains.
Le terrain du bien s'étend sur 1 137 m².
Cette maison compte 2 niveaux. Elle est neuve.
Cette maison se trouve dans un secteur prisé. On y trouve une école primaire. Niveau transports en commun, il y a quatre gares à moins de 10 minutes en voiture. On trouve un tennis, une bibliothèque, un commerce, une boulangerie et une épicerie à quelques minutes.
Son prix de vente est de 475 000 €.
Prenez contact avec Thibault DUTEURTRE (06-23-41-73-81) pour obtenir de plus amples informations sur la maison ou sur les modalités de vente. Concrétisez vos projets immobiliers avec Maisons Balency Coignières.
Annonce proposée par un Agent Commercial Partenaire.
Mentions légales
Terrain proposé par un partenaire foncier selon disponibilités et autorisation de publicité au prix de 130 000 €. Hors droit d'enregistrement et frais de notaire. Terrain + Maison proposés au prix de 475 000 € (Hors branchements et raccordements, papiers peints, peintures, revêtement de sol dans les chambres. Tarif modifiable sans préavis). Etiquette énergie : A. Différents modèles disponibles pour ce terrain. Assurances et garanties du constructeur (RC professionnelle, décennale, dommage ouvrage, garantie de remboursement de l'acompte, livraison à prix et délai convenu) : https://www.maisons-balency.fr/informations-legales/. HEXAOM Services est enregistré auprès de l'ORIAS en tant que Courtier en financement, Niveau 1, sous le numéro 14001345.Agence Maisons Balency de Coignières (78310)
- Téléphone :
- 01 34 61 42 59
- Adressse :
- Domexpo Ouest
78310 Coignières, France
