Maison neuve à
Ganzeville (76400) Référence : MJ2253233_1

Prix du projet : Maison avec Terrain

prix 285 000 €

  • 4 pièces
  • 3 chambres
  • Surface maison 120 m2

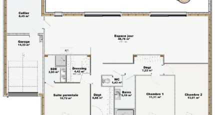
VENTE d'une maison F4 (120 m²) à Ganzeville
QUARTIER RECHERCHÉ - MAISON 4 PIÈCES NEUVE
À vendre : localisée à 6 km de la Manche, nous vous proposons cette maison de 4 pièces de plain-pied de 120 m² et de 805 m² de terrain dans un quartier attractif de Ganzeville (76400).
Elle est composée de trois chambres, d'une cuisine et de deux salles de bains. La maison est neuve.
Cette maison est située dans un secteur prisé. Côté transports en commun, il y a la gare Fécamp à moins de 10 minutes en voiture. L'autoroute A29 est accessible à 17 km. On trouve un tennis dans les environs.
Elle est proposée à l'achat pour 285 000 €.
N'hésitez pas à prendre contact avec notre agence (Michael JOURDON : 0643058444) pour plus d'informations sur la maison, sur les modalités de vente ou sur les démarches à suivre. Maisons Balency Boos vous accompagne à toutes les étapes de l'achat et dans tous vos projets immobiliers.

Annonce proposée par un Agent Commercial Partenaire.

Mentions légales

Terrain proposé par un partenaire foncier selon disponibilités et autorisation de publicité au prix de 59 000 €. Hors droit d'enregistrement et frais de notaire. Maison proposée, avec un contrat de construction de maison individuelle, dans le cadre de la loi du 19/12/1990, au prix de 226 000 € (Hors branchements et raccordements, papiers peints, peintures, revêtement de sol dans les chambres, qui sont chiffrés dans les travaux qui restent à charge du client. Tarif modifiable sans préavis). Étiquette énergie : A. Différents modèles disponibles pour ce terrain. Assurances et garanties du constructeur comprises (RC professionnelle, décennale, dommage ouvrage).

Contactez l'agence de Boos

02 35 80 66 66

    * Champs obligatoires

    Vos informations sont traitées par HEXAOM et transmises à un conseiller commercial qui vous contactera afin de répondre à votre demande. Les plans et images présentés sur notre site sont la propriété d’HEXAOM et ne peuvent pas être reproduits sans son accord. Pour retrouver notre politique de protection des données personnelles et exercer vos droits conformément à la « loi informatique et liberté » cliquez-ici.