Maison neuve à
Ganzeville (76400) Référence : MJ2335552_1

Prix du projet : Maison avec Terrain

prix 259 900 €

  • 5 pièces
  • 4 chambres
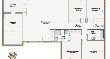
  • Surface maison 113 m2

Maison F5 (113 m²) à vendre à Fécamp
QUARTIER RECHERCHÉ - MAISON 5 PIÈCES NEUVE
À vendre : à 6 km de la Manche, découvrez cette maison de 5 pièces de plain-pied de 113 m² et de 701 m² de terrain dans un secteur recherché de Fécamp (76400). Conçue de plain-pied, elle se divise en quatre chambres, une cuisine et deux salles de bains.
La maison est neuve.
Cette maison se situe dans un quartier prisé. Il y a des établissements scolaires du primaire et du secondaire à moins de 10 minutes à pied. Côté transports en commun, on trouve la gare Fécamp à quelques pas de la maison. Il y a un accès à l'autoroute A29 à 20 km. Il y a un bassin de natation, un tennis, un port de plaisance, des commerces, des boulangeries, deux supermarchés, une poissonnerie et un bureau de poste à quelques minutes de la maison.
Elle est à vendre pour la somme de 259 900 €.
Contactez Michael JOURDON (06.43.05.84.44) pour toute question sur la maison ou sur les modalités de vente. Faites de vos projets immobiliers une réalité avec Maisons Balency Boos.

Annonce proposée par un Agent Commercial Partenaire.

Mentions légales

Terrain proposé par un partenaire foncier selon disponibilités et autorisation de publicité au prix de 57 500 €. Hors droit d'enregistrement et frais de notaire. Terrain + Maison proposés au prix de 202 400 € (Hors branchements et raccordements, papiers peints, peintures, revêtement de sol dans les chambres. Tarif modifiable sans préavis). Etiquette énergie : A. Différents modèles disponibles pour ce terrain. Assurances et garanties du constructeur (RC professionnelle, décennale, dommage ouvrage, garantie de remboursement de l'acompte, livraison à prix et délai convenu) : https://www.maisons-balency.fr/informations-legales/. HEXAOM Services est enregistré auprès de l'ORIAS en tant que Courtier en financement, Niveau 1, sous le numéro 14001345.

Contactez l'agence de Boos

02 35 80 66 66

    * Champs obligatoires

    Vos informations sont traitées par HEXAOM et transmises à un conseiller commercial qui vous contactera afin de répondre à votre demande. Les plans et images présentés sur notre site sont la propriété d’HEXAOM et ne peuvent pas être reproduits sans son accord. Pour retrouver notre politique de protection des données personnelles et exercer vos droits conformément à la « loi informatique et liberté » cliquez-ici.