Maison neuve à
Ganzeville (76400) Référence : MJ2335561_1

Prix du projet : Maison avec Terrain

prix 299 900 €

  • 6 pièces
  • 5 chambres
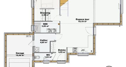
  • Surface maison 114 m2

Ganzeville : maison de 6 pièces (114 m²) à vendre
EMPLACEMENT PRIVILÉGIÉ - MAISON 6 PIÈCES NEUVE
En vente à 6 km de la Manche, votre agence Maisons Balency Boos est heureuse de vous présenter cette maison de 6 pièces de 114 m² bénéficiant d'un emplacement d'exception dans Ganzeville (76400). Son intérieur est composé de cinq chambres, d'une cuisine et de deux salles de bains.
Le terrain de la propriété s'étend sur 805 m².
Cette maison compte 2 niveaux. Elle est neuve.
Cette maison se situe dans un secteur prisé. Niveau transports en commun, on trouve la gare Fécamp à moins de 10 minutes en voiture. On trouve un accès à l'autoroute A29 à 17 km. Il y a un tennis à quelques minutes à peine.
Elle est à vendre pour la somme de 299 900 €.
Contactez Michael JOURDON (06.43.05.84.44) pour obtenir de plus amples renseignements sur la maison.

Annonce proposée par un Agent Commercial Partenaire.

Mentions légales

Terrain proposé par un partenaire foncier selon disponibilités et autorisation de publicité au prix de 59 000 €. Hors droit d'enregistrement et frais de notaire. Terrain + Maison proposés au prix de 240 900 € (Hors branchements et raccordements, papiers peints, peintures, revêtement de sol dans les chambres. Tarif modifiable sans préavis). Etiquette énergie : A. Différents modèles disponibles pour ce terrain. Assurances et garanties du constructeur (RC professionnelle, décennale, dommage ouvrage, garantie de remboursement de l'acompte, livraison à prix et délai convenu) : https://www.maisons-balency.fr/informations-legales/. HEXAOM Services est enregistré auprès de l'ORIAS en tant que Courtier en financement, Niveau 1, sous le numéro 14001345.

Contactez l'agence de Boos

02 35 80 66 66

    * Champs obligatoires

    Vos informations sont traitées par HEXAOM et transmises à un conseiller commercial qui vous contactera afin de répondre à votre demande. Les plans et images présentés sur notre site sont la propriété d’HEXAOM et ne peuvent pas être reproduits sans son accord. Pour retrouver notre politique de protection des données personnelles et exercer vos droits conformément à la « loi informatique et liberté » cliquez-ici.