Maison neuve à
Ganzeville (76400) Référence : SEMA9028_1

Prix du projet : Maison avec Terrain

prix 165 000 €

  • 4 pièces
  • 2 chambres
  • Surface maison 60 m2

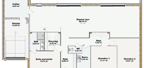
VENTE d'une maison F4 (60 m²) à Ganzeville
MAISON 4 PIÈCES NEUVE
À 6 km de la Manche, à vendre à Ganzeville (76400), Maisons Balency Boos vous présente cette maison de 4 pièces de plain-pied de 60 m².
Son intérieur est composé de deux chambres, d'une cuisine et d'une salle de bains. Cette maison est neuve.
Le terrain de la propriété est de 800 m².
Niveau transports en commun, il y a la gare Fécamp à moins de 10 minutes en voiture. Il y a un accès à l'autoroute A29 à 17 km. On trouve un tennis à proximité.
Elle est proposée à l'achat pour 165 000 €.
Contactez Sébastien MASSON (tél : 06-23-38-14-17) pour tout renseignement sur la maison. Maisons Balency Boos vous accompagne dans toutes vos démarches et dans tous vos projets immobiliers.

Annonce proposée par un Agent Commercial Partenaire.

Mentions légales

Terrain proposé par un partenaire foncier selon disponibilités et autorisation de publicité au prix de 59 000 €. Hors droit d'enregistrement et frais de notaire. Maison proposée, avec un contrat de construction de maison individuelle, dans le cadre de la loi du 19/12/1990, au prix de 106 000 € (Hors branchements et raccordements, papiers peints, peintures, revêtement de sol dans les chambres, qui sont chiffrés dans les travaux qui restent à charge du client. Tarif modifiable sans préavis). Étiquette énergie : A. Différents modèles disponibles pour ce terrain. Assurances et garanties du constructeur comprises (RC professionnelle, décennale, dommage ouvrage).

Contactez l'agence de Boos

02 35 80 66 66

    * Champs obligatoires

    Vos informations sont traitées par HEXAOM et transmises à un conseiller commercial qui vous contactera afin de répondre à votre demande. Les plans et images présentés sur notre site sont la propriété d’HEXAOM et ne peuvent pas être reproduits sans son accord. Pour retrouver notre politique de protection des données personnelles et exercer vos droits conformément à la « loi informatique et liberté » cliquez-ici.