Maison neuve à
Ganzeville (76400) Référence : SEMA9028_4

Prix du projet : Maison avec Terrain

prix 224 000 €

  • 6 pièces
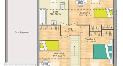
  • 4 chambres
  • Surface maison 89 m2

VENTE : maison F6 (89 m²) à Ganzeville
MAISON 6 PIÈCES NEUVE
En vente à 6 km de la Manche, à Ganzeville (76400), laissez vous charmer par cette maison de 6 pièces de 89 m² et de 800 m² de terrain. Elle dispose de quatre chambres, d'une cuisine et d'une salle de bains.
Il s'agit d'une maison de 2 niveaux. Elle est neuve.
Niveau transports, il y a la gare Fécamp à moins de 10 minutes en voiture. On trouve un accès à l'autoroute A29 à 17 km. On trouve un tennis à proximité.
Elle est proposée à l'achat pour 224 000 €.
Contactez notre agence (MASSON Sébastien : 06-23-38-14-17) pour obtenir de plus amples renseignements sur cette maison, sur les modalités de vente ou sur les démarches à suivre. Maisons Balency Boos vous accompagne à toutes les étapes de l'achat et dans tous vos projets immobiliers.

Annonce proposée par un Agent Commercial Partenaire.

Mentions légales

Terrain proposé par un partenaire foncier selon disponibilités et autorisation de publicité au prix de 59 000 €. Hors droit d'enregistrement et frais de notaire. Maison proposée, avec un contrat de construction de maison individuelle, dans le cadre de la loi du 19/12/1990, au prix de 165 000 € (Hors branchements et raccordements, papiers peints, peintures, revêtement de sol dans les chambres, qui sont chiffrés dans les travaux qui restent à charge du client. Tarif modifiable sans préavis). Étiquette énergie : A. Différents modèles disponibles pour ce terrain. Assurances et garanties du constructeur comprises (RC professionnelle, décennale, dommage ouvrage).

Contactez l'agence de Boos

02 35 80 66 66

    * Champs obligatoires

    Vos informations sont traitées par HEXAOM et transmises à un conseiller commercial qui vous contactera afin de répondre à votre demande. Les plans et images présentés sur notre site sont la propriété d’HEXAOM et ne peuvent pas être reproduits sans son accord. Pour retrouver notre politique de protection des données personnelles et exercer vos droits conformément à la « loi informatique et liberté » cliquez-ici.