Maison neuve à
Ganzeville (76400) Référence : SEMA9028_7

Prix du projet : Maison avec Terrain

prix 253 000 €

  • 9 pièces
  • 5 chambres
  • Surface maison 124 m2

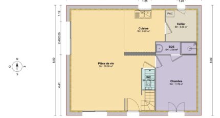
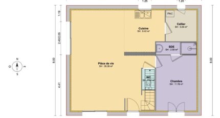
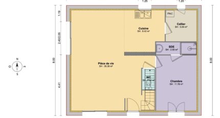
VENTE d'une maison de 9 pièces (124 m²) à Ganzeville
MAISON 9 PIÈCES NEUVE
À 6 km de la Manche, laissez vous charmer par à vendre à Ganzeville (76400), cette maison de 9 pièces de 124 m².
Cette maison possède 2 niveaux. Elle dispose de cinq chambres, d'une cuisine et de trois salles de bains. Cette maison est neuve.
Le terrain de la propriété est de 800 m².
Niveau transports, il y a la gare Fécamp à moins de 10 minutes en voiture. L'autoroute A29 est accessible à 17 km. On trouve un tennis dans les environs.
Elle est à vendre pour la somme de 253 000 €.
Contactez Sébastien MASSON (tél : 06-23-38-14-17) pour toute information sur la maison et sur les modalités de vente.

Annonce proposée par un Agent Commercial Partenaire.

Mentions légales

Terrain proposé par un partenaire foncier selon disponibilités et autorisation de publicité au prix de 59 000 €. Hors droit d'enregistrement et frais de notaire. Maison proposée, avec un contrat de construction de maison individuelle, dans le cadre de la loi du 19/12/1990, au prix de 194 000 € (Hors branchements et raccordements, papiers peints, peintures, revêtement de sol dans les chambres, qui sont chiffrés dans les travaux qui restent à charge du client. Tarif modifiable sans préavis). Étiquette énergie : A. Différents modèles disponibles pour ce terrain. Assurances et garanties du constructeur comprises (RC professionnelle, décennale, dommage ouvrage).

Contactez l'agence de Boos

02 35 80 66 66

    * Champs obligatoires

    Vos informations sont traitées par HEXAOM et transmises à un conseiller commercial qui vous contactera afin de répondre à votre demande. Les plans et images présentés sur notre site sont la propriété d’HEXAOM et ne peuvent pas être reproduits sans son accord. Pour retrouver notre politique de protection des données personnelles et exercer vos droits conformément à la « loi informatique et liberté » cliquez-ici.