Maison neuve à
Ganzeville (76400) Référence : EL2457745_5

Prix du projet : Maison avec Terrain

prix 238 000 €

  • 9 pièces
  • 5 chambres
  • Surface maison 124 m2

Ganzeville : maison de 9 pièces (124 m²) en vente
IDÉALEMENT SITUÉE - MAISON 9 PIÈCES NEUVE
À vendre : située à 6 km de la Manche, nous sommes ravis de vous proposer, idéalement située dans Ganzeville (76400), cette maison de 9 pièces de 124 m².
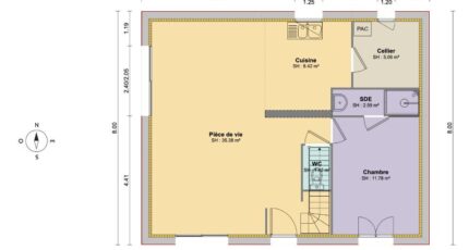
Il s'agit d'une maison de 2 niveaux. Elle comporte cinq chambres, une cuisine et trois salles de bains. La maison est neuve.
Le terrain de la propriété s'étend sur 790 m².
Cette maison est située dans un secteur recherché. Niveau transports, il y a la gare Fécamp à moins de 10 minutes en voiture. L'autoroute A29 est accessible à 17 km. On trouve un tennis à quelques minutes à peine.
Elle est à vendre pour la somme de 238 000 €.
Prenez contact avec notre agence (Aurélien LEOVANT : 02-35-80-66-66) pour obtenir de plus amples informations sur la maison ou sur les démarches à suivre. Faites de vos projets immobiliers une réalité avec Maisons Balency Boos.

Annonce proposée par un Agent Commercial Partenaire.

Mentions légales

Terrain proposé par un partenaire foncier selon disponibilités et autorisation de publicité au prix de 49 000 €. Hors droit d'enregistrement et frais de notaire. Terrain + Maison proposés au prix de 238 000 € (Hors branchements et raccordements, papiers peints, peintures, revêtement de sol dans les chambres. Tarif modifiable sans préavis). Etiquette énergie : A. Différents modèles disponibles pour ce terrain. Assurances et garanties du constructeur (RC professionnelle, décennale, dommage ouvrage, garantie de remboursement de l'acompte, livraison à prix et délai convenu) : https://www.maisons-balency.fr/informations-legales/. HEXAOM Services est enregistré auprès de l'ORIAS en tant que Courtier en financement, Niveau 1, sous le numéro 14001345.

Contactez l'agence de Boos

02 35 80 66 66

    * Champs obligatoires

    Vos informations sont traitées par HEXAOM et transmises à un conseiller commercial qui vous contactera afin de répondre à votre demande. Les plans et images présentés sur notre site sont la propriété d’HEXAOM et ne peuvent pas être reproduits sans son accord. Pour retrouver notre politique de protection des données personnelles et exercer vos droits conformément à la « loi informatique et liberté » cliquez-ici.